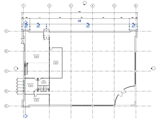
In questo esercizio, si aggiungono quote al modello di edificio per quotare il perimetro dell'edificio principale.
|
Prima di iniziare, scaricare il file GSG_11_dimensions.rvt. Scaricare questo file ZIP (se i file degli esercizi per le esercitazioni non sono già stati scaricati).
Obiettivi
gruppo Quota
(Allineata).

gruppo Quota
(Allineata).

gruppo Quota
(Allineata).
