In questo esercizio, si crea un tetto piano utilizzando il perimetro dei muri esterni e un tetto inclinato con una sporgenza all'ingresso.
|
Categoria
|
Nuovi utenti
|
|
Tempo richiesto
|
10 minuti
|
|
File dell'esercitazione usati
|
GSG_05_add_roof.rvt
|
|
Prima di iniziare, scaricare il ile GSG_05_add_roof.rvt. Scaricare questo file ZIP (se i file degli esercizi per le esercitazioni non sono già stati scaricati).
Obiettivi
- Aggiungere le linee del tetto con un'inclinazione e una sporgenza definite.
- Aggiungere un tetto piano.
- Associare muri interni al tetto.
Guarda il video
Disegno del tetto
- Aprire il progetto GSG_05_add_roof.rvt.
- Aprire la pianta del pavimento 02 - Lower Parapet.
- Fare clic sulla scheda Architettura
menu a discesa Tetto
(Tetto da perimetro).
- Creare un tetto inclinato con una sporgenza:
- Nel gruppo Disegna, fare clic su
(Seleziona muri).
- Sulla barra delle opzioni, in Sporgenza, immettere 600 e deselezionare Definisce l'inclinazione.
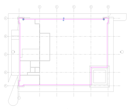
- Nell'area di disegno, evidenziare un muro dell'ingresso. Quando viene visualizzata una linea tratteggiata all'esterno del muro, premere il tasto TAB per selezionare la catena di muri e fare clic per posizionare le linee del tetto.
- Nella tavolozza Proprietà, impostare Livello di base su 03 - Upper Parapet.
- Nel gruppo Modalità, fare clic su
(Fine) per posizionare il tetto.
- Fare clic su Modifica per terminare il comando.
- Disegnare un tetto piano:
- Nella tavolozza Proprietà, impostare il valore Sottostante su 01 - Store Floor.
- Fare clic sulla scheda Architettura
menu a discesa Tetto
(Tetto da perimetro).
- Nel gruppo Disegna, fare clic su
(Seleziona muri).
- Sulla barra delle opzioni, impostare Sporgenza su 0 e deselezionare Definisce l'inclinazione.
- Nella tavolozza Proprietà, impostare Offset della base dal livello su -750.
- Nell'area di disegno effettuare le seguenti operazioni:
- Evidenziare un muro esterno.
- Premere TAB per selezionare la catena di muri.
- Fare clic per posizionare le linee del tetto.
- Nel gruppo Modalità, fare clic su
(Fine).
Parte 6 - Posizionamento di porte