ミニ チュートリアル: ベクトルを合成する

この練習では、図面を更新して、新しいベクトル データを既存のラスター データと合成します。

注: スタートアップ ガイドのサンプル ファイルは、https://www.autodesk.com/raster_design_getting_started_guide からダウンロードできます。サンプル ファイルをワークステーションにダウンロードして展開し、この練習で使用してください。
ベクトルをラスター データに合成するには
1

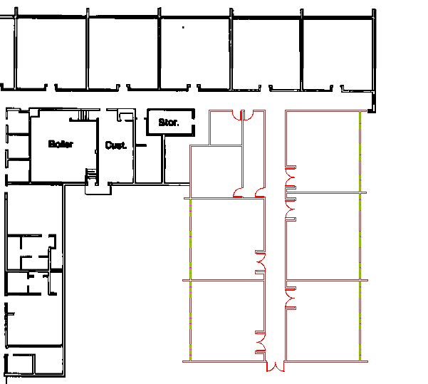
サンプル ファイル LiveView_Merge.dwg を開きます。

学校の図面が表示されます。白いラスター データは元の建物を示し、色つきのベクトル データは追加された教室を示しています。

2 リボンの[ラスター ツール]タブ [編集]パネル(展開時) [ラスター ペン設定]をクリックして[ラスター ペン設定]ダイアログ ボックスを開きます。
3

[赤]ペン カラーを選択し、ペン幅を 1 ピクセルに設定して、[OK]をクリックします。

この設定により、ドアが壁より細いラスター ラインで描かれます。

4

リボンの[ラスター ツール]タブ [編集]パネル(展開時) [ベクトルを合成]をクリックします。新しい教室を構成するオブジェクトを囲むように窓を描いてそれらを選択し、ラスター イメージのフレームを選択した後、右クリックして選択を終了します。

注: ラスター イメージのフレームを選択できない場合は、[ラスター ツール]タブ [管理と表示]パネル [フレーム表示/非表示]をクリックします。

[Enter]を押して、合成の後でベクトルを削除する既定値の設定を受け入れます。続行を確認するプロンプトが表示されたら、[はい]をクリックします。

ベクトル データがラスター データと合成されます。