この練習では、モデルの内部を完成させて下部レベルの中二階に階段を追加した後で、階段の手すりを修正します。
|
カテゴリ
|
新規ユーザ
|
|
所要時間
|
15 分
|
|
使用するチュートリアル ファイル
|
GSG_09_stairs_railings.rvt
|
|
作業を開始する前に、GSG_09_stairs_railings.rvt ファイルをダウンロードします。チュートリアル用の練習ファイルをまだダウンロードしていない場合は、この zip ファイルをダウンロードしてください。
目的
- 店舗の床と中二階の間に階段を作成します。
- 中二階を含めるように階段の手すりを修正します。
- 手すりタイプをパイプ レールに変更します。
ビデオを見る
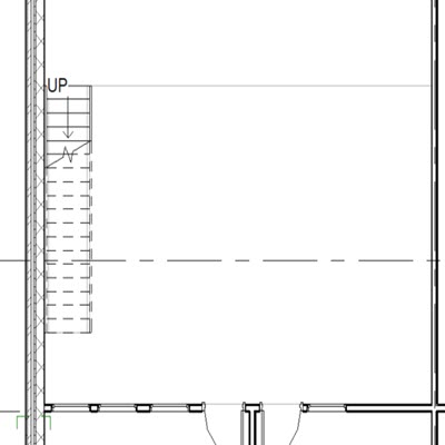
階段を作成する
- GSG_09_stairs_railings.rvt のプロジェクトを開きます。
- [01 - Store Floor]平面図が開いていることを確認します。
- [建築]タブ
[階段]パネル 
(階段)をクリックします。
- プロパティ パレットの[拘束]で次のように操作します。
- [基準レベル]に[01 - Store Floor]を選択します。
- [上部レベル]に[中二階]を選択します。
- オプション バーで、配置基準を[階段経路:左]に設定します。
- 店舗の部屋で、中二階アンダーレイのコーナーをクリックして階段経路を開始します。
- 残りの蹴込み板が 0 であることがツールチップで示されるまでカーソルを下側に移動し、クリックして階段の端点を指定します。
- [モード]パネルで
(編集モードを終了)をクリックします。
手すりタイプを修正する
- クイック アクセス ツールバーで
(既定の 3D ビュー)をクリックします。
- 陸屋根を選択して、ビュー コントロール バーの
(一時的に非表示/選択表示)を使用して[要素を非表示]を選択します。
- 壁に近い階段の側面上の手すりを選択します。
- タイプ セレクタで、[900 mm Pipe Wall]を選択します。
- 警告ダイアログで[タイプを削除]をクリックします。
- 階段の反対側の手すりを選択します。
- タイプ セレクタで[900 mm Pipe]を選択します。
パート 10: ビューを作成する