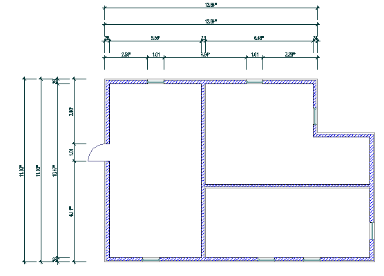
연관 AEC 치수는 연관된 객체 변경 시 자동으로 업데이트되는 스타일 기반 주석 객체입니다. AEC 치수 스타일은 이 스타일에서 치수 지정에 사용할 수 있는 각 객체에 대해 어떤 측정을 표시할지를 결정하는 치수점을 정의합니다.
아래 예제의 벽 길이, 개구부 폭 및 벽 교차점은 스타일에서 치수가 기입된 점으로 설정되어 있습니다. 문을 넓히면 치수가 새 측정값을 반영하여 업데이트됩니다.

특정 객체 유형에 대한 스타일을 정의할 수 있습니다. 예를 들어, 하나의 AEC 치수 스타일에서 벽에 대해 길이, 벽에 있는 창의 최대 개구부 폭 및 벽 교차점의 치수가 표시되도록 지정할 수 있습니다. 매스 요소에 대한 다른 AEC 치수 스타일은 매스 요소 모서리와 중심을 치수점으로 지정할 수 있습니다.
각 뷰에 대해 서로 다른 치수점을 정의할 수도 있습니다. 예를 들어, 낮은 상세 평면도에서는 건물의 외부 경계에만 치수를 기입하고 높은 상세 평면도에서는 벽의 개구부와 벽 길이에 치수를 기입할 수도 있습니다.
AEC 치수 스타일에 각각 다른 치수점을 가진 치수 체인을 최대 10개까지 정의할 수 있습니다. 예를 들어, 첫 번째 체인은 벽의 개구부와 벽 길이에 치수를 기입하고 두 번째 체인은 다중 구성요소 벽의 구조 구성요소에 치수를 기입할 수 있습니다.
AEC 치수 스타일에서 수퍼스크립트를 치수에 사용할지 여부와 치수보조선 길이의 고정 여부를 지정할 수도 있습니다.