기존 커넥터를 신축하고 커넥터 핀을 추가, 이동 및 교체합니다.
커넥터 삽입 도구막대에는 커넥터 및 커넥터 핀을 수정하는 데 사용하는 도구가 있습니다. 커넥터에서 찾은 핀을 추가, 제거 또는 이동할 수도 있습니다.
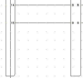
기존 커넥터 신축


을 클릭합니다. 찾기
신축할 커넥터의 끝 지정: PJ1의 맨 아래 부분을 선택합니다.
변위의 두 번째 점 지정:
흑색 박스 1 아래쪽으로 커넥터를 끌어 당깁니다.


커넥터 핀 추가


를 클릭합니다. 찾기
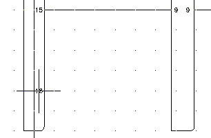
커넥터 선택: PJ1을 선택합니다.
새 핀을 삽입할 위치 지정 또는 [재설정(R)]<16>:
PJ1의 핀 15에서 4칸 아래를 선택한 다음 마우스 오른쪽 버튼을 클릭하고 입력을 선택합니다.
사용 가능한 다음 핀 번호(16)가 선택한 점에 삽입됩니다.



를 클릭합니다. 찾기
커넥터 선택: PJ6을 선택합니다.
새 핀을 삽입할 위치 지정 또는 [재설정(R)]<10>:
PJ1에서 새 핀 16을 선택하여 새 핀과 함께 핀 10 인라인을 삽입한 다음 마우스 오른쪽 버튼을 클릭하고 입력을 선택합니다.

커넥터 핀 수정


을 클릭합니다. 찾기
이동할 커넥터 핀 선택: PJ1에서 핀 16을 선택합니다.
핀 16의 새 위치 지정: PJ1에서 공간 2개 위를 선택합니다.
이동할 커넥터 핀 선택: PJ6에서 핀 10을 선택합니다.
핀 10의 새 위치 지정:
PJ1에서 핀 16을 선택하여 해당 핀과 함께 핀 10 인라인을 이동하고 마우스 오른쪽 버튼을 클릭합니다.



를 클릭합니다. 찾기
커넥터 핀 선택: PJ1에서 핀 16을 선택합니다.
커넥터 핀 선택: 교체: PJ1에서 핀 12를 선택하고 마우스 오른쪽 버튼을 클릭합니다.


을 클릭합니다. 찾기
반전(Reverse)할 커넥터 선택: 상단 인라인 커넥터를 선택하고 마우스 오른쪽 버튼을 클릭합니다.



을 클릭합니다. 찾기
핀 간격: 1.0
핀 개수: 2
고정 간격
핀 리스트: 1
전체 삽입
삽입점 지정 또는 [Z=줌, P=초점이동, X=와이어 교차, V=수평/수직, Tab=반전(Flip)]:
커넥터를 선택하여 흑색 박스 1의 맨 위에 배치합니다.


을 클릭합니다. 찾기
회전할 커넥터 선택 또는 [유지(H)]:
새 커넥터를 선택한 다음 마우스 오른쪽 버튼을 클릭하고 입력을 선택합니다.
