핀 개수, 핀 간격 및 핀 값과 같은 커넥터 매개변수를 정의하여 커넥터를 동적으로 구성합니다.
커넥터 삽입 도구는 사용자 정의 매개변수로부터 커넥터 기호를 생성합니다. 이 기호는 즉시 작성되어 활성 도면 파일에 블록 삽입으로 삽입됩니다. 이 기호는 필요할 때 작성할 수 있으므로 커넥터 기호 라이브러리를 작성하여 유지하지 않아도 됩니다.
도면 특성 변경


을 클릭합니다. 찾기
구성요소 대화상자에서 순차를 선택합니다.
와이어 번호 대화상자의 새 와이어 번호 배치 섹션에서 인라인을 선택합니다.
도면에 커넥터 추가


을 클릭합니다. 찾기
핀 간격: 1.0
핀 개수: 15
고정 간격
핀 리스트: 1
전체 삽입

미리보기에 다음 이미지와 같이 나타납니다.

도면에 배치할 커넥터의 미리보기 윤곽선이 표시됩니다. 커넥터의 플러그 쪽 구석이 둥글게 나타납니다. "x"는 커넥터의 삽입점을 표시합니다. 화살표는 커넥터의 플러그/리셉터클 또는 플러그만 삽입하는 경우 플러그 쪽 와이어 연결 방향이나 커넥터의 리셉터클만 삽입하는 경우 와이어 연결 방향을 표시합니다.
삽입점 지정 또는 [Z=줌, P=초점이동, X=와이어 교차, V=수평/수직, Tab=반전(Flip)]:
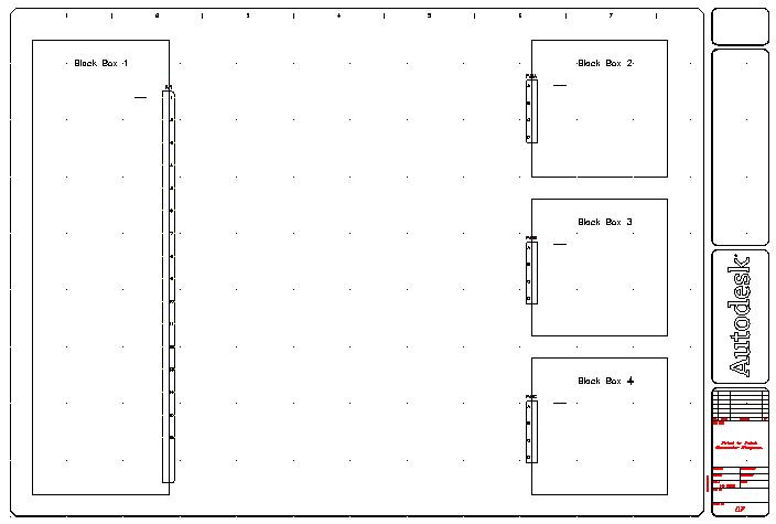
커넥터를 선택하여 흑색 박스 1의 오른쪽 경계 중간에 배치합니다.

커넥터에 구성요소 태그 PJ1이 자동으로 지정됩니다.


을 클릭합니다. 찾기
핀 간격: 0.75
핀 개수: 4
고정 간격
핀 리스트: A
전체 삽입
미리보기에 다음 이미지와 같이 나타납니다.

삽입점 지정 또는 [Z=줌, P=초점이동, X=와이어 교차, V=수평/수직, Tab=반전(Flip)]:
커넥터를 선택하여 흑색 박스 2의 왼쪽 경계 중간에 배치합니다.

커넥터에 구성요소 태그 PJ2가 자동으로 지정됩니다.
커넥터에 태그 PJ3 및 PJ4가 각각 지정됩니다.
