W tym ćwiczeniu utworzysz przekrój, widok odwołania do ściany zewnętrznej oraz odwołanie do szczegółu — parapetu.
|
Kategoria
|
Nowi użytkownicy
|
|
Wymagany czas
|
10 minut
|
|
Używane pliki ćwiczeniowe
|
GSG_10_views.rvt
|
|
Przed rozpoczęciem pobierz plik GSG_10_views.rvt. Pobierz ten plik zip (jeśli jeszcze nie pobrano plików do tych ćwiczeń).
Cele
- Użyj narzędzia Przekrój, aby utworzyć przekrój budynku.
- Użyj narzędzi sterowania, aby zmienić wyświetlanie obszaru przekroju i etykiety przekroju.
- Użyj narzędzia Odwołanie, aby utworzyć widok przekroju ściany.
- Użyj narzędzia Odwołanie, aby utworzyć szczegółowy widok przekroju ściany.
Obejrzyj nagranie wideo
Utwórz widok przekroju
- Otwórz projekt GSG_10_views.rvt.
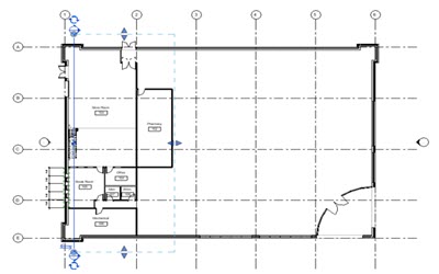
- W Przeglądarce projektu w obszarze Rzuty kliknij dwukrotnie pozycję 01 — Kondygnacja sklepu.
- Kliknij kolejno kartę Widok
panel Utwórz
(Przekrój).
- Kliknij poza obszarem południowej ściany budynku w pobliżu siatki 1, przesuń kursor w górę, aż znajdzie się poza budynkiem po północnej stronie, a następnie kliknij, aby wstawić linię przekroju w pobliżu środka schodów, tak jak pokazano na rysunku.
- Kliknij kontrolkę odwracania (
) w celu odwrócenia sekcji w taki sposób, aby zawierała magazyn 103.
- Kliknij kontrolkę przełączania (
) u góry, aby przełączać kolejne opcje symbolu końca przekroju i wyświetlić etykietę przekroju u góry oraz u dołu.
- Naciśnij klawisz Esc.
- Kliknij dwukrotnie symbol przekroju, aby otworzyć widok przekroju.
- Na pasku kontroli widoku kliknij przycisk
(Ukryj zakres przycięcia).
Tworzenie widoków odwołania
- Kliknij kolejno kartę Widok
panel Utwórz
(Odwołanie).
- Z pola Wybór typu w części Przekrój wybierz opcję Przekrój ściany.
- Aby narysować odwołanie wokół całej północnej ściany budynku (po lewej stronie w widoku przekroju) — od fundamentu po dach — kliknij w celu zdefiniowania lewego dolnego rogu, a następnie kliknij w celu zdefiniowania prawego górnego rogu obszaru.
- Wybierz odwołanie i użyj kontrolki Przeciągnij początek, aby przeciągnąć symbol odwołania tak, by był wyświetlany w lewej górnej części okna odwołania.
- Naciśnij klawisz Esc.
- Kliknij dwukrotnie symbol odwołania, aby otworzyć widok odwołania.
- Na pasku kontroli widoku kliknij przycisk
(Ukryj zakres przycięcia).
- Na pasku sterowania widokiem zmień poziom szczegółowości na Średni.
- Na panelu Utwórz kliknij opcję
(Odwołanie).
- Z pola Wybór typu w obszarze Widok szczegółu wybierz opcję Szczegół.
- Narysuj odwołanie wokół parapetu ściany.
- Zmień położenie symbolu odwołania na lewy górny róg.
- Aby otworzyć widok, kliknij dwukrotnie symbol odwołania.
- Na pasku kontroli widoku kliknij przycisk
(Ukryj zakres przycięcia).
Część 11: Dodawanie wymiarów