Neste exercício, você carrega tipos de portas no projeto e, a seguir, adiciona portas internas e externas para o modelo.
|
Categoria
|
Novos usuários
|
|
Tempo necessário
|
10 minutos
|
|
Arquivos de tutorial usados
|
GSG_06_place_doors.rvt, M_Door-Exterior-Double.rfa, M_Door-Overhead-Sectional.rfa, M_Door-Passage-Double-Flush-Dbl_Acting.rfa, M_Door-Passage-Single-Flush.rfa
|
|
Antes de começar, faça o download dos arquivos de tutorial GSG_06_place_doors.rvt, M_Door-Exterior-Double.rvt, M_Door-Overhead-Sectional, M_Door-Passage-Double-Flush-Dbl_Acting e M_Door-Passage-Single-Flush. Faça o download deste arquivo zip (se o download dos arquivos dos exercícios dos tutoriais ainda não tiver sido feito).
Objetivos
- Carregar famílias de portas.
- Usar o Seletor de tipos para alterar os tipos de portas.
- Inserir portas no modelo.
- Usar a barra de espaço para alterar o lado de abertura da porta antes de inserir a porta.
- Usar os
controles de inversão para alterar a orientação da porta após inseri-la.
Assista ao vídeo
Carregar famílias
- Abra o projeto GSG_06_place_doors.rvt.
- Clique na guia Inserir
Carregar do painel Biblioteca
(Carregar família).
- Na caixa de diálogo Carregar família, navegue para a pasta na qual você salvou os arquivos de família para o exercício.
- Enquanto pressiona Ctrl, selecione os arquivos e, a seguir, clique em Abrir.
- GSG_06_M_Door-Exterior-Double.rfa
- GSG_06_M_Door-Overhead-Sectional.rfa
- GSG_06_M_Door-Passage-Double-Flush-Dbl_Acting.rfa
- GSG_06_M_Door-Passage-Single-Flush.rfa
Colocar portas
- No Navegador de projeto, em Plantas de piso, clique duas vezes em 01 – Piso da loja.
- Clique na guia Arquitetura
painel Construção
(Porta).
- No Seletor de tipos, certifique-se de que M_Door-Passage-Double-Flush-Dbl_Acting esteja selecionado.
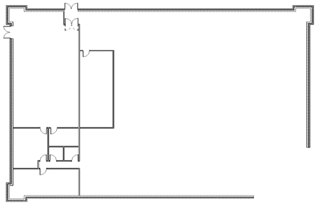
- Clique para inserir uma porta na entrada do ambiente da loja, conforme mostrado.
- No Seletor de tipos, selecione M_Door-Exterior-Double 1800 x 2.000.
- Clique para inserir portas nas paredes externas inferiores, conforme mostrado.
- No Seletor de tipos, selecione M_Door-Passage-Single-Flush 900 x 200.
- Insira portas adicionais, conforme mostrado.
Nota: Para alterar a direção de abertura ou o lado da dobradiça ao inserir a porta, pressione a barra de espaço. Para alterar a direção após uma porta ter sido inserida, clique nas
setas de inversão.
- Use o Seletor de tipos para escolher a porta M_Door-Overhead-Sectional e inserir a parede oeste do ambiente da loja.
Parte 7: Colocando janelas