Растяжение существующих соединителей, а также добавление, перенос и перестановка выводов соединителя.
На панели инструментов вставки соединителей имеются инструменты, предназначенные для изменения соединителей и выводов соединителей. Также имеется возможность добавления, удаления или перемещения выводов, найденных внутри соединителя.
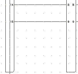
Растяжение существующих соединителей


. найти
Укажите, какой конец соединителя растянуть: Выберите нижнюю часть PJ1
Задайте вторую точку смещения:
Вытяните соединитель до нижнего края Символа ACAD-E 1


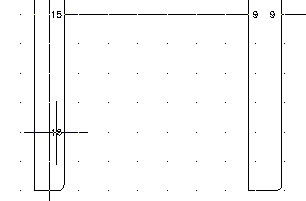
Добавление выводов соединителя


. найти
Выберите соединитель: Укажите PJ1
Укажите место для вставки нового вывода или [Сброс]<16>:
Выберите 4 интервала в нижнем направлении от вывода 15 на PJ1, щелкните правой кнопкой мыши и выберите в контекстном меню "Ввод"
В выбранной точке вставляется вывод со следующим свободным номером (16).



. найти
Выберите соединитель: Укажите PJ6
Укажите место для вставки нового вывода или [Сброс]<10>:
Выберите новый вывод 16 на PJ1 для вставки вывода 10 на линии соединения, щелкните правой кнопкой мыши и выберите "Enter"

Изменение выводов соединителя


. найти
Выберите вывод соединителя для перемещения: Укажите вывод 16 на PJ1
Задайте новое расположение для вывода 16: Выберите два промежутка в направлении вверх на PJ1
Выберите вывод соединителя для перемещения: Укажите вывод 10 на PJ6
Задайте новое расположение для вывода 10:
Укажите вывод 16 на PJ1 для перемещения вывода 10 на линию соединения, щелкните правой кнопкой мыши



. найти
Выберите вывод соединителя: Укажите вывод 16 на PJ1
Выберите вывод соединителя, замените на: Выберите вывод 12 на PJ1, щелкните правой кнопкой мыши


. найти
Выберите соединитель для обращения: Выберите верхний встроенный соединитель, щелкните правой кнопкой мыши



. найти
Интервал выводов: 1.0
Количество выводов: 2
Фиксированный интервал
Список выводов: 1
Вставить все
Задайте точку вставки [Z = зумирование, P = панорамирование, X = пересечение проводов, В = горизонтально/вертикально, TAB = отразить]:
Укажите точку для размещения соединителя в верхней части Символа ACAD-E 1


. найти
Выберите соединитель для поворота или [Сохранить]:
Выберите новый соединитель, щелкните правой кнопкой мыши и нажмите Enter
