Диалог Образмерить вид

Используйте этот диалог, чтобы:

Вид - выберите в списке вид или щелкните мышью по требуемому виду чертежа.

Габаритные размеры - выберите опцию, чтобы открыть размеры Х и Y объекта выбранного вида.

Отверстия:

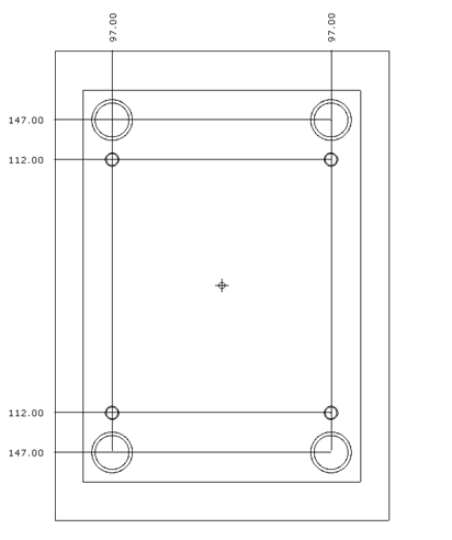
Центр - центр задаётся по умолчанию как начало координат вида. Если центр меняется, начало координат вида обновляется, чтобы занять новое положение. Центр помечается осевыми линиями.

Чтобы изменить центр:

Введите X Y Z координаты или нажмите кнопку Точка для вызова диалога Точка, в котором можно использовать инструменты ввода положений.

Расположение текста - можно выбрать расположение для текста ординатных размеров в следующих положениях:

В изображении вида использована опция размера отверстия Вверху слева.

Расположить размеры на ближайшей стороне - выберите опцию, чтобы расположить размерный текст на ближайшей к центру отверстия стороне. Это удобно использовать в пластинах с сотнями отверстий, поскольку улучшается чёткость изображения чертежа.

Погасите опцию, чтобы разместить все размеры на одной стороне. Положение размерного текста задаётся выбором опций Вверху слева, Вверху справа, Внизу слева, Внизу справа.

Направление отверстия - выберите отверстия, которые необходимо образмерить:

Образмерить предварительные отверстия - выберите опцию для нанесения размеров предварительно обработанных отверстий.

Если размеры расположены близко друг к другу, размерные линии автоматически отображаются ломаными, чтобы предотвратить наложение.