Этот способ размещения пространства предусматривает наложение зависимости, согласно которой его объем заключен между базовым уровнем и вышележащим уровнем.
Этот метод можно применять при размещении пространств в зонах, проходящих через несколько уровней, в зонах с верхнем уровнем на консоли и зонах с лофт-объектом, который служит верхним пределом для части зоны. Такие зоны можно разделить посредством линий-разделителей пространств или дополнительных уровней
В Диспетчере проекта дважды щелкните на виде плана этажа, который содержит базовый уровень для зоны, расположенной на нескольких уровнях.
Далее следует создать разрез для проверки протяженности размещаемых пространств по вертикали.
Совет: Пространства не отображаются на фасадах.
Создание разрезов
Можно воспользоваться существующим разрезом, однако следует убедиться в том, что линия разреза пересекает зону, в которой будут размещены пространства.
- Выберите вкладку "Вид"
панель "Создание"
("Разрез").
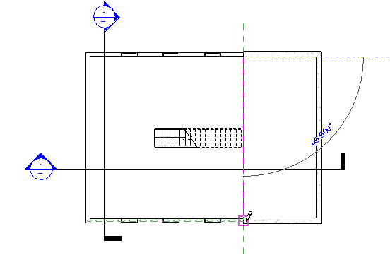
- На виде плана этажа нарисуйте два перпендикулярных разреза через план этажа, как показано на рисунке.
Убедитесь в том, что линия разреза пересекает зону, в которой размещается пространство. В противном случае пространство не будет отображаться на разрезе.
- В Диспетчере проекта откройте новый разрез, дважды щелкнув на нем.
Создание уровней
В этом разделе предполагается, что в конструкции существуют стандартные уровни и создавать их не требуется. При отсутствии таких уровней необходимо создать их.
- Нажмите "Изменить".
Разделение зоны посредством линий-разделителей пространств
- Щелкните на плане этажа для активизации этого вида.
- Выберите вкладку «Анализ»
панель «Пространства и зоны»
«Разделитель пространства» и постройте разделитель пространства между частями зоны, соответствующими различным значениям верхнего предела.
Прим.: Линии-разделители пространств являются компонентами с функцией границ комнат.
- В Диспетчере проекта откройте оба новых вида разреза.
- Закройте все виды, кроме двух разрезов и плана этажа, на котором требуется разместить пространство, и введите с клавиатуры w t для расположения этих трех видов без перекрывания.
Можно также выбрать вкладку «Вид»
панель «Окна»
(«Мозаичное расположение окон»).
Включение видимости пространств
- Щелкните на разрезе для его активизации.
- Наберите v g на клавиатуре.
- На вкладке "Категории модели" диалогового окна "Видимость/Графика" путем прокрутки вниз отобразите раздел "Пространства".
- Разверните раздел "Пространства", выберите "Внутреннее" и "Опорные" (если требуется отображать опорные перекрестия) и нажмите "OK".
- Для отображения пространств на другом виде разреза и на виде плана этажа выполните эту операцию еще раз.
Размещение пространства
- При активном плане этажа выберите вкладку «Анализ»
панель «Пространства и зоны»
(«Пространство»).
- На панели параметров выполните следующие операции:
- Для параметра "Верхний предел" задайте вышележащий уровень.
Для пространства, расположенного под крышей, верхний предел следует задать на уровне, расположенном над крышей; в этом случае выполняется привязка пространства к крыше. При отсутствии такого уровня создайте его. Подробные сведения см. в разделе Размещение пространств до крыши.
- В поле "Смещение" введите значение 0 футов 0 дюймов (0,00 мм).
Эти два параметра указывают протяженность пространства по вертикали, или его высоту.
Прим.: Если высота, определяемая верхним пределом и смещением, выходит за пределы вышележащего уровня, расположенного над крышей, граница пространства по вертикали несмотря на это привязывается к компоненту с функцией границы комнаты, например, к потолку или полу. Это обусловлено тем, что при выбранном параметре "Площади и объемы" (режим по умолчанию) выполняется привязка границы пространства по вертикали к компонентам с функцией границ комнат, таким как потолки, полы и крыши. Объем пространства рассчитывается до компонента с функцией границы помещения. Для доступа к параметру "Площади и объемы" выберите вкладку "Архитектура"

раскрывающийся список "Помещения и зоны"

"Расчеты площадей и объемов".
- При создании нового пространства убедитесь в том, что в поле "Пространство" выбрано значение "Новое", а для размещения существующего неразмещенного пространства выберите его в списке.
Выберите требуемые значения для следующих параметров:
- "Марка при размещении": размещение марки вместе с пространством.
Режим "Марка при размещении" выбран по умолчанию. Если выбран режим "Марка при размещении", в списке "Выбор типа" можно выбрать тип марки.
- Поле "Местоположение марки": указывает местоположение марки пространства - "Горизонтально", "Вертикально" или "Модель".
Это поле доступно только в том случае, если выбран режим "Марка при размещении".
- "Выноска": создание линии выноски для марки пространства.
Этот параметр доступен только в том случае, если выбран режим "Марка при размещении".
- "Показ ограничивающих элементов". Выделение в модели здания элементов с функцией границ помещений для их быстрого распознавания.
- На виде плана этажа наведите курсор на зону в модели здания и щелчком мыши разместите пространство.
Прим.: Пространства можно размещать только на видах плана этажа.
- Нажмите "Изменить".
- Выберите пространство.
- На палитре свойств в разделе "Расчет энергопотребления" выполните одно из следующих действий.
- Установите флажок "Сдается в аренду", если пространство будет обитаемым.
- Снимите флажок "Сдается в аренду", если пространство будет необитаемым.
- Нажмите "ОК".
Прим.: При размещении пространства в зоне, содержащей комнату, автоматически устанавливается флажок "Сдается в аренду". Пространство определяется как обитаемое. Если зона не содержит помещение, флажок "Сдается в аренду" автоматически снимается. Пространство определяется как необитаемое. В любой момент можно изменить определение пространства, установив или сняв этот флажок. Параметр «Сдается в аренду» влияет на
расчет систем.
Проверка пространств
- На разрезе и виде плана этажа проверьте наличие зависимостей, согласно которым раскрашенные зоны, представляющие объем пространств, заключены между базовым уровнем и вышележащим уровнем, и убедитесь в отсутствии нераскрашенных зон (которые могут быть вызваны, например, наличием полостей или шахт). При выполнении этих условий повышается точность расчета объема.
- Если на пространство не наложена указанная зависимость, на разрезе убедитесь в том, что в качестве верхнего предела пространства задан вышележащий уровень, и при необходимости измените заданную протяженность пространства по вертикали.
Необходимо также разрешить все нераскрашенные зоны.
Другие сложные пространства можно разделить посредством линий-разделителей пространств или посредством уровней, как показано на рисунке.
Пример слева. Уровень разделяет зону по горизонтали. Для нижней зоны базовым уровнем служит уровень 1, а верхним пределом - уровень 2. Для второго пространства в качестве базового уровня задан уровень 2, а в качестве верхнего предела - уровень верха крыши.
Пример справа. Линия, разделяющая пространства, разделяет зону по вертикали. Для нижней зоны базовым уровнем служит уровень 1, а верхним пределом - уровень верха крыши. Для пространства 2 базовым уровнем является уровень 2, а верхним пределом - уровень верха крыши.