第 11 部分:加入標註

在本練習中,您要在建築模型加入標註,以標註主建築的跡線。

品類 新使用者
所需時間 15 分鐘
使用的自學課程檔案 GSG_11_dimensions.rvt

開始之前,請先下載 GSG_11_dimensions.rvt 檔案。下載此 ZIP 檔案 (如果您尚未下載自學課程的練習檔案)。

目標

觀看影片

加入尺寸

  1. 開啟專案 GSG_11_dimensions.rvt。
  2. 請確認 01 - Store Floor 樓板平面圖是開啟的。
  3. 按一下「標註」頁籤「尺寸」面板 (對齊)。
  4. 在選項列上,選取「牆面」,針對「點選」,選取「個別參考」。
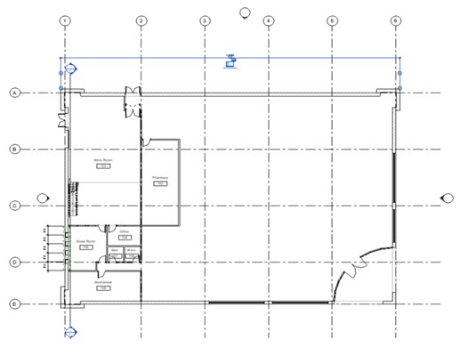
  5. 標註建築寬度:
    • 按一下西牆的外部牆面。
    • 按一下東牆的外部牆面。
    • 將游標移至建築物上方,然後按一下以放置標註。

標註網格

  1. 在選項列上:
    • 按一下「標註」頁籤「尺寸」面板 (對齊)。
    • 針對「點選」,選取「整面牆」。
    • 按一下「選項」。
    • 在「自動標註選項」對話方塊中,選取「相交網格」,然後按一下「確定」。
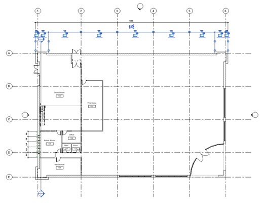
  2. 標註南牆的窗開口和交點:
    • 按一下內嵌北側外牆。
    • 按一下西牆和東牆。
    • 將游標移至建築物上方,然後按一下以放置標註。
  3. 按一下「修改」。

標註開口

  1. 在選項列上:
    • 按一下「標註」頁籤「尺寸」面板 (對齊)。
    • 針對「點選」,選取「整面牆」。
    • 按一下「選項」。
    • 在「自動標註選項」對話方塊中,選取「開口」,然後按一下「確定」。
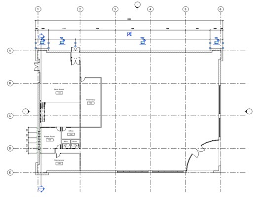
  2. 標註南牆的窗開口和交點:
    • 按一下內嵌北側外牆。
    • 按一下西牆和東牆。
    • 將游標移至建築物上方,然後按一下以放置標註。
  3. 按一下「修改」。

第 12 部分:加入註釋