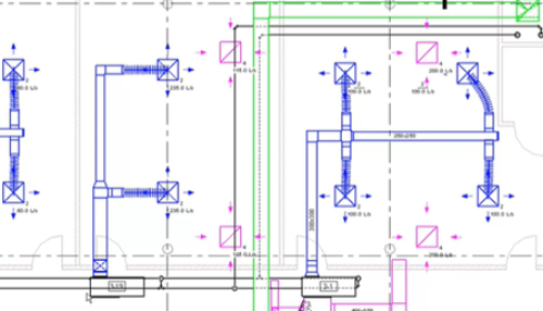
使用「風管」選項編輯風管的高程和尺寸。
透過加入設備、建立邏輯系統,並加入風管系統來建立實體,以便建立風管系統。
貼合到既有風管工程時,「繼承大小」和「繼承高程」工具可用來符合風管大小和高程。
壓力報告會評估系統,並提供系統元素的損失係數。
使用定位風管,以指示風管的概略位置。
在 Revit 中分割 MEP 系統可以提昇系統效能。
使用「修改風管」面板將隔熱層和襯層加入至風管的一個區段或整個風管。
使用計算增益集計算管或風管壓力降。
在模型中放置電管來建立電力系統。
放置與現有的電管管路平行的電管。
編輯回路路徑以建立精確的電氣系統計算。
定義模型設定,並管理「管線儀表流程圖 (P&ID) 建模」中的對映。
設定 P&ID 標籤、對映元素,並將管段其加入至模型。
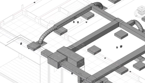
使用 Revit 中的工具,建立反映 MEP 製造意圖的模型,讓您能夠與營造細部設計員分享。
建立 MEP 製造模型時,您可以使用風門特定的圖元區控制項加入、移除或旋轉整組風門葉片。
在模型中放置吊架,並且使用控制項避免與其他 MEP 元素碰撞。
使用「性質」選項板或「編輯零件」工具修改連接製造零件的大小。
將有 Revit MEP 元素的設計模型轉換為有 LOD 400 MEP 製造零件的 MEP 製造模型。
使用「修剪/延伸」、「快速連接」,或「佈線與填滿」來填滿風管系統、管道系統,或電纜架之製造模型中的間隙。
在模型中按幾個點建立一段連接 MEP 製造零件的管路。
空間命名工具將建築房間的名稱和編號指定給用於建築效能分析的 MEP 空間。