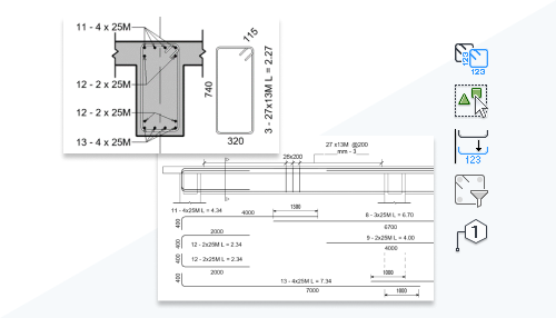
配筋圖面上的鋼筋彎鉤詳圖

在配筋圖面中加入彎鉤詳圖,以建立精確的鋼筋彎鉤和安裝指示。

您可以使用功能區中的專用工具,在平面視圖、剖面視圖和立面視圖中的視圖裁剪範圍內或外側放置彎鉤詳圖。修改鋼筋彎鉤詳圖的參數,以符合您配筋圖面的需求。



此功能是由客戶在構想論壇上提出建議,產品說明有加以描述。

請參閱配筋圖面上的鋼筋彎鉤詳圖