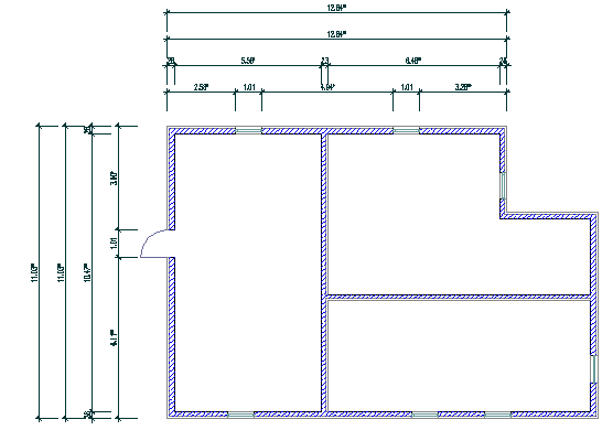
Asociativní kóty AEC jsou objekty poznámek založené na stylu, které se aktualizují automaticky při změně asociovaného objektu. Styl kóty AEC definuje body kóty, které určují měřítka, jež se budou zobrazovat pro každý objekt, u něhož bude daný styl použit ke kótování.
V níže uvedeném příkladu jsou délky stěn, šířky zárubní a průsečíky stěn nastaveny jako body kóty ve stylu. Pokud jsou dveře vyrobeny širší, kóty se aktualizují tak, aby odrážely nová měřítka.

Můžete definovat styly pro konkrétní typy objektů. Jeden styl kóty AEC může například určovat, že u stěn budou kóty zobrazeny pro délky, maximální šířky zárubní nebo oken ve stěnách a průsečíky stěn. Další styl kóty AEC pro objemové prvky může určovat okraje a střed objemového prvku jako body kóty.
Pro různé pohledy je také možné definovat různé body kót. Pokud například zobrazujete méně detailů půdorysu, můžete chtít kótovat pouze vnější hranice budovy, zatímco ve více detailech půdorysu můžete chtít kótovat délky stěn a také zárubně.
Ve stylu kóty AEC můžete definovat až deset řetězců kóty, každý s různými body kóty. První řetězec může například kótovat délky stěn a zárubně ve stěnách, zatímco druhý řetězec kótuje konstrukční komponenty stěn s více komponentami.
Ve stylu kóty AEC můžete také zadat, zda se mají v kótách použít horní indexy a zda bude délka vynášecí čáry pevná nebo proměnná.