Rozsah pohledu je sada horizontálních rovin, které řídí viditelnost a zobrazení objektů v půdorysném pohledu.
Videofilm: Použití rozsahu pohledu
Každý půdorysný pohled obsahuje vlastnost nazývanou rozsah pohledu, která je také známá jako viditelný rozsah. Horizontální roviny, které definují rozsah pohledu, jsou možnosti Nahoru, Rovina řezu a Dolů. Horní a dolní roviny oříznutí představují nejvyšší a nejnižší část rozsahu pohledu. Rovina řezu je rovina, která určuje, v jaké výšce se konkrétní prvky v pohledu zobrazí jako oříznuté. Tyto tři roviny definují primární rozsah pohledu.
Hloubka pohledu je další rovina mimo primární rozsah. Změnou hloubky pohledu se zobrazí prvky pod dolní rovinou oříznutí. Ve výchozím nastavení se hloubka pohledu shoduje s dolní rovinu oříznutí.
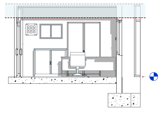
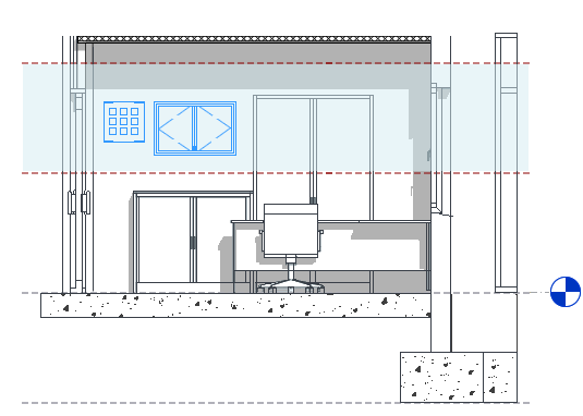
V následujícím bokorysném pohledu je zobrazen rozsah
půdorysného pohledu: Nahoru
, Rovina řezu
, Dolů
, Odsazení (od dolní části)
, Primární rozsah
a Hloubka pohledu
.
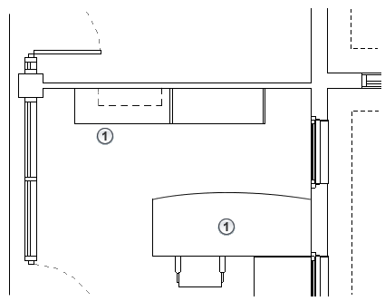
V půdorysném pohledu na pravé straně je zobrazen výsledek pro tento rozsah pohledu.
|
|
V půdorysném pohledu se v aplikaci Revit používají následující pravidla k zobrazení prvků, které jsou protnuty rovinou řezu:
Výjimky pro zobrazení prvků protnutých rovinou řezu zahrnují následující možnosti:
Těchto 6 stop (nebo 2 m) se měří od horní strany hraničního obdélníku ke spodní hranici primárního rozsahu pohledu. Pokud například vytvoříte stěny, jejichž horní část je 6 stop nad dolní rovinou oříznutí, stěna je oříznuta v rovině řezu. Když bude horní část stěny ve vzdálenosti nepřesahující 6 stop, zobrazí se celá stěna jako průmět, i když protíná rovinu řezu. K tomuto chování dochází vždy, když je u stěny nastavena vlastnost Horní vazba jako Nepřipojená. Pokud je vlastnost Horní vazba stěny nastavena na Připojená, pak se pro určení, zda stěna bude oříznuta nebo promítnuta, vždy použije poloha roviny řezu.
Tip: Rodiny mohou obsahovat geometrii, která protíná rovinu řezu, což umožňuje, aby byla geometrie viditelná, pokud je nad rovinou řezu.
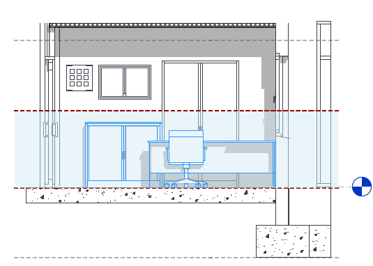
V následujícím bokorysném pohledu značí modré zvýraznění prvky, které protínají rovinu řezu.
V půdorysném pohledu na pravé straně se zobrazí následující možnosti:
Prvky, které jsou nakresleny pomocí tloušťky čáry řezu (stěny, dveře a okno)
Prvky, které jsou nakresleny pomocí tloušťky čáry v pohledu bez možnosti ořezání (truhlářské výrobky).
|
|
V půdorysném pohledu se pomocí aplikace Revit nakreslí tyto prvky pomocí tloušťky čáry v pohledu kategorie prvku.
V následujícím bokorysném pohledu označuje modré zvýraznění prvky, které jsou pod rovinou řezu a nad dolní rovinou oříznutí.
V půdorysném pohledu na pravé straně se zobrazí následující možnosti:
Prvky, které jsou nakresleny pomocí tloušťky čáry v pohledu, protože nejsou protnuté rovinou řezu
|
|
Prvky v rámci hloubky pohledu jsou nakresleny pomocí stylu čáry <Za> bez ohledu na kategorii prvku.
Výjimky: U podlaží, konstrukčních podlah, schodišť a ramp umístěných mimo rozsah pohledu se používá upravený rozsah, který je 4 stopy (přibližně 1,22 metru) pod dolní hranicí primárního rozsahu. V rámci upraveného rozsahu jsou prvky nakresleny pomocí tloušťky čáry v pohledu pro kategorii. Pokud existují mimo tento upravený rozsah, ale v rámci hloubky pohledu, jsou dané prvky nakresleny pomocí stylu čáry <Za>.
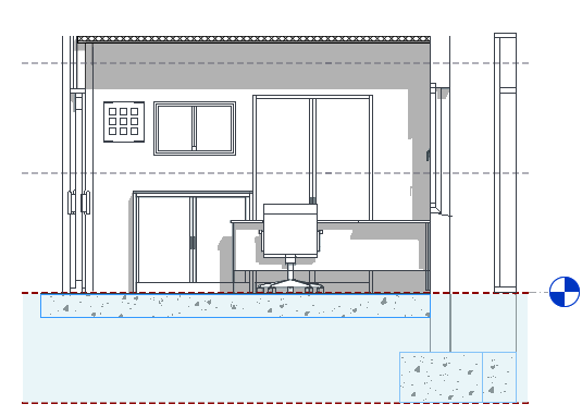
Například v následujícím bokorysném pohledu označuje modré zvýraznění prvky, které se objeví pod dolní rovinou oříznutí a v rámci hloubky pohledu.
V půdorysném pohledu na pravé straně se zobrazí následující možnosti:
prvek (základ) v rámci hloubky pohledu, který je nakreslen pomocí stylu čáry <Za>,
prvek, který je nakreslen pomocí tloušťky čáry v pohledu pro kategorii, protože splňuje podmínky výjimky.
|
|
Tyto prvky jsou zobrazeny v půdorysném pohledu, pokud jsou jejich kategorie okna, truhlářské výrobky nebo obecný model. Prvky v těchto třech kategoriích jsou nakresleny pomocí tloušťky čáry v pohledu jako při pohledu shora.
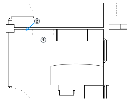
Například v následujícím pohledu označuje modré zvýraznění prvky, které se objeví mezi horní částí rozsahu pohledu a rovinou řezu.
V půdorysném pohledu na pravé straně se zobrazí následující možnosti:
nástěnné truhlářské výrobky, které jsou nakresleny pomocí tloušťky čáry v pohledu. V tomto případě je styl přerušované čáry v pohledu definován v rodině truhlářských výrobků.
nástěnné svítidlo (kategorie osvětlení), které není nakresleno v půdorysném pohledu, protože jeho kategorií nejsou okna, truhlářské výrobky nebo obecný model.
|
|
U pohledů strop jsou podobně jako u půdorysných pohledů použita nastavení rozsahu pohledu, ale s určitými rozdíly.
