V tomto cvičení vytvoříte řez, pohled detailu vnější stěny a popis detailu atiky.
|
Kategorie
|
Noví uživatelé
|
|
Potřebný čas
|
10 minut
|
|
Použité soubory výukových programů
|
GSG_10_views.rvt
|
|
Než začnete, stáhněte si soubor GSG_10_views.rvt. Stáhněte si tento soubor ZIP (pokud jste ještě nestáhli soubory cvičení pro výukové programy).
Cíle
- Pomocí nástroje Řez vytvořit pohled řezu budovy
- Pomocí ovládacích prvků změnit oblast obsaženou v řezu a změnit zobrazení záhlaví řezu
- Pomocí nástroje Detail vytvořit pohled řezu stěny
- Pomocí nástroje Detail vytvořit detailní pohled řezu stěny
Zhlédnout video
Vytvoření pohledu řezu
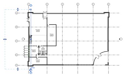
- Otevřete projekt GSG_10_views.rvt.
- V Prohlížeči projektu pod položkou Půdorysy podlaží dvakrát klikněte na položku 01 – Podlaží skladu.
- Klikněte na kartu Pohled
panel Vytvořit
(Řez).
- Klikněte mimo jižní stěnu budovy poblíž osnovy 1, pohybujte kurzorem nahoru, dokud nebude mimo budovu na severní straně, a kliknutím umístěte čáru řezu přibližně skrz prostřední část schodiště, jak je zde znázorněno.
- Kliknutím na ovládací prvek pro převrácení (
) převraťte řez tak, aby zahrnoval místnost skladu č. 103.
- Dvakrát klikněte na ovládací prvek pro procházení v horní části (
), abyste mohli procházet cyklem možností zápatí řezu, a zobrazte záhlaví řezu nahoře a dole.
- Stiskněte klávesu Esc.
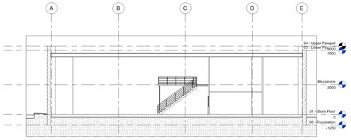
- Dvojitým kliknutím na záhlaví řezu otevřete pohled řezu.
- Na ovládacím panelu pohledu klikněte na položku
(Skrýt oblast oříznutí).
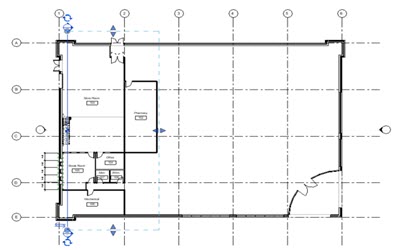
Vytvoření pohledů detailů
- Klikněte na kartu Pohled
panel Vytvořit
(Detail).
- V seznamu Výběr typu v části Řez klikněte na položku Řez stěny.
- Chcete-li nakreslit detail kolem celé severní (v řezu levé) stěny budovy (od základů po střechu), kliknutím definujte levý dolní roh ohraničení a dalším kliknutím definujte pravý horní roh.
- Vyberte detail a pomocí ovládacího prvku Přetáhnout záhlaví přetáhněte záhlaví detailu, aby se v něm zobrazila levá horní část detailu.
- Stiskněte klávesu Esc.
- Dvojitým kliknutím na záhlaví detailu otevřete pohled detailu.
- Na ovládacím panelu pohledu klikněte na položku
(Skrýt oblast oříznutí).
- Na ovládacím panelu Pohled změňte úroveň detailu na Střední.
- Na panelu Vytvořit klikněte na položku
(Detail).
- V seznamu Výběr typu v části Detailní pohled klikněte na tlačítko Detail.
- Nakreslete detail kolem atiky stěny.
- Přemístěte záhlaví detailu do polohy vlevo nahoře.
- Dvojitým kliknutím na záhlaví detailu otevřete detailní pohled.
- Na ovládacím panelu pohledu klikněte na položku
(Skrýt oblast oříznutí).
Část 11: Přidání kót