Rozvržení výkresů pomocí generativního návrhu v aplikaci Revit

Pomocí Generativní návrh můžete automatizovat vytváření a zkoumání rozvržení výkresů.

Tento článek vychází z tohoto příspěvku na blogu aplikace Dynamo, který publikoval John Pierson.

Uspořádání pohledů

Generativní návrh může konstruktérům pomoci s některými rutinnějšími úlohami v aplikaci Revit. Jednou z takových úloh je tvorba rozvržení výkresů. V příručce Primer generativního návrhu je uveden příklad uspořádání co největšího počtu pohledů na výkres pomocí smyčky zpětné vazby. Mnoho uživatelů aplikace Revit však využívá různé typy pohledů, které chtějí mít na výkresu, a potřebuje užitečnější způsob, jak prozkoumat rozvržení výkresů.

V tomto článku Vyzkoušeli jste již se dozvíte, jak pomocí Generativní návrh rozvrhnout výkresy způsobem, který konstruktérům skutečně pomáhá.

Videofilm

V tomto videofilmu získáte informace o tom, jak vytvářet rozvržení výkresů pomocí Generativní návrh. Ve videofilmu je již nastaven typ vzorové studie. Přejděte dolů a přečtěte si podrobné pokyny.

Video poskytl John Pierson

Nastavení výkresu

V tomto příkladu je použit vzorový model rac_advanced_sample_project.rvt. Vzorový projekt je k dispozici v aplikaci Revit nebo si jej můžete stáhnout zde.

Typ studie (graf aplikace Dynamo) pro tento příklad si můžete stáhnout zde: Uspořádání výřezů.

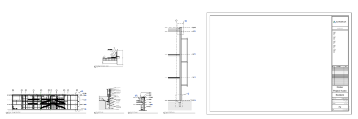
  1. Otevřete vzorový model rac_advanced_sample_project.rvt a přejděte na výkres A2 – Řezy.
  2. Přetáhněte pohledy, které chcete umístit na výkres, stranou. To umožní Generativní návrh provést jejich umístění.

Sheet A2 in the sample model, with views moved to the side

Nastavení typu studie

Dále vytvoříme studii Generativní návrh pomocí typu studie Uspořádání výřezů. Začneme zpřístupněním typu studie v dialogu Vytvořit studii.

Přejděte na Správa panel Generativní návrh Vytvořit studii.

Poznámka: Případně můžete dialog Vytvořit studii otevřít tak, že přejdete na Správa Dynamo Generativní návrh (v horní části nabídky) Vytvořit studii.

V tomto okamžiku se v dialogu Vytvořit studii jako typ studie zobrazí packedViews, pokud jste uložili složku Uspořádání výřezů (obsahující soubor DYN a složku Závislosti) na stejném místě jako ostatní typy studií.

Pokud tento typ studie nevidíte, postupujte podle následujících kroků:

  1. Vedle rozevírací nabídky Vybrat složku vyberte položku Add folder icon Přidat složku.
  2. Klikněte na ikonu + a přejděte k cestě, kde se nachází složka grafu Uspořádání výřezů. Složka by měla obsahovat soubor DYN i složku Závislosti.
  3. Po přidání cesty ke složce můžete dialog Správa složek zavřít.

Definování studie

Nyní by měl být k dispozici typ studie Uspořádané pohledy, který lze použít k vytvoření studie.

  1. V dialogu Vytvořit studii vyberte v rozevíracím seznamu Vybrat složku nebo v seznamu typů studií položku packedViews.
  2. V rozevíracím seznamu Metoda změňte metodu na Náhodně rozdělit.
  3. V pravém horním rohu dialogu klikněte na nabídku Study options icon Možnosti studie a vyberte možnost Uložit výchozí nastavení.
  4. Klikněte na tlačítko Generovat. Vytvoření výsledků pomocí Generativní návrh může chvíli trvat.

Průzkum výsledků

V dialogu Prozkoumat výsledky se zobrazí řada výsledků. Výběrem libovolného výsledku zobrazíte větší obrázek, který můžete otáčet a přibližovat nebo oddalovat, abyste viděli více podrobností. V náhledu jsou uvedeny názvy výřezů, které znázorňují rozložení jednotlivých možností.

Na vzorovém výkresu je k dispozici celkem 5 pohledů. Pomocí filtrů v grafu rovnoběžných souřadnic ve středu dolní části dialogu Prozkoumat výsledky můžete vybrat, kolik pohledů chcete na výkresu zobrazit. Kliknutím a přetažením podél os (vertikálních čar) v grafu použijte filtry.

Zobrazení výsledku v aplikaci Revit:

  1. Vyberte požadovaný výsledek a poté klikněte na tlačítko Vytvořit prvky aplikace Revit. Tím se v aplikaci Revit vytvoří vybrané rozvržení výkresu.
  2. Minimalizujte dialog Prozkoumat výsledky nebo jej přesuňte na stranu, abyste viděli model aplikace Revit.
  3. Chcete-li vyzkoušet jinou možnost, vyberte možnost Zpět (Ctrl+Z), čímž se rozvržení zruší.
  4. V dialogu Prozkoumat výsledky vyberte jinou možnost a znovu klikněte na tlačítko Vytvořit prvky aplikace Revit. Rozvržení výkresu se odpovídajícím způsobem aktualizuje.

Sheet layout option in the Explore Outcomes dialog and the same option generated in Revit

Přidání dalších pohledů

Pokud chcete do výkresu přidat další pohledy, vytvořte novou studii. S již definovaným typem studie a nastavením je to rychlý a snadný proces.

  1. Přidejte požadované pohledy na výkres.
  2. Vytvořte novou studii. Studii můžete vytvořit přímo v dialogu Prozkoumat výsledky kliknutím na tlačítko Vytvořit studii v levém dolním rohu.
  3. Vyberte typ studie packedViews. Ve výchozím nastavení budou použita nastavení, která jste uložili dříve, ale pokud chcete, můžete je změnit, například výběrem jiného výkresu.
  4. Klikněte na tlačítko Generovat.

Zkontrolujte a vyzkoušejte různé možnosti rozvržení, jak je popsáno v předchozí části. Pokud máte příliš mnoho pohledů, než aby se pohodlně vešly na výkres, můžete pomocí filtru určit počet pohledů, které chcete umístit. Všechny pohledy, které překračují tento limit, budou umístěny vedle výkresu.

Pomocí Generativní návrh můžete eliminovat zdlouhavé zkoumání rozvržení výkresů. Zkuste to a dejte nám vědět, co si myslíte, tím, že níže tento článek ohodnotíte a napíšete svůj názor do pole komentáře.