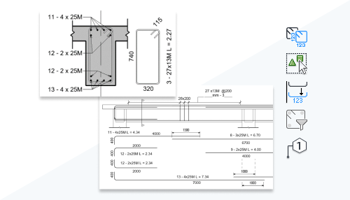
Přidáním výtahů výztuže do výkresů výztuží můžete vytvořit přesné pokyny k ohybu a instalací tyčí.
Pomocí vyhrazených nástrojů na pásu karet můžete umístit výtahy výztuže do půdorysného pohledu, pohledu řezu a bokorysného pohledu uvnitř nebo vně ořezové oblasti pohledu. Upravte parametry výtahů výztuže tak, aby nejlépe vyhovovaly potřebám výkresu výztuže.

Tuto funkci doporučili zákazníci na fóru Ideas a je popsána v harmonogramu vývoje produktu.
Viz část Výtahy výztuže ve výkresech výztuží.