In diesem Beispiel werden mithilfe eines einfachen Modells die beiden Befehle zum Erstellen von Stücklisten in einer Zeichnung und die entsprechenden Ausgaben hervorgehoben: Detailliste einfügen und Zeichnungsliste einfügen.

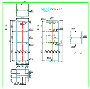
An der ersten Achse (Achse 1) wurde eine Ansicht erstellt.

Bei Teilübersichten, die unter Verwendung eines Zeichnungsstils erstellt wurden, für den in der Modellobjektauswahl (unter Zeichnungsstil Verwaltung) eine der Optionen Gesamtmodell oder Gesamtes Modell mit Xrefs verwendet wird, enthalten Stücklisten, die für die betreffende Ansicht erstellt werden, sämtliche Objekte aus dem Modell, nicht nur die von der Detailbox umschlossenen.

In Stücklisten, die für diesen Typ von Teilübersichten erstellt werden, wird am unteren Ende eine Warnung angezeigt, die darauf hinweist, dass der Inhalt der Liste nicht mit dem Inhalt der Teilübersicht übereinstimmt. Dieser Text ist Bestandteil der Stückliste. Er weist denselben Textstil auf und wird zusammen mit ihr verschoben. Er kann nicht entfernt werden.
| Stückliste – Strukturierte Liste | Stückliste – Materialliste |
|---|---|
![]() |
![]() |
Beachten Sie, dass auch dann, wenn die Positionsmarkierungen A2 und A4 nicht Teil dieser Ansicht sind, sie weiterhin in der Stückliste angezeigt werden.
Wenn für den Detailstil eine der Optionen Detailbox oder Detailbox mit XRefs verwendet wird, wird dieser Text nicht an die Stückliste angefügt.

Eine Stückliste, die mit dem Befehl Detailliste einfügen erstellt wurde, zeigt nur die Elemente innerhalb des Detailfelds an. Die Positionsmarkierungen A2 und A4 werden nicht mehr angezeigt, da sie sich auf der Rückseite des Modells befinden (Achsen 2 oder 3).
| Stückliste – Strukturierte Liste | Stückliste – Materialliste |
|---|---|
![]() |
![]() |
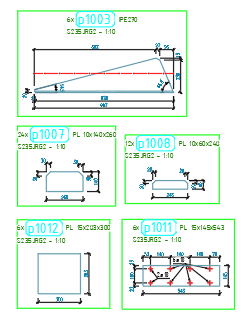
Die in der Liste für einzelne Teile angezeigten Mengen sind Gesamtmengen. Bei Teilübersichten werden in der Liste die im ganzen Modell vorhandenen Gesamtmengen für jedes einzelne Teil angezeigt, auch wenn nicht alle diese identischen Objekte in der Ansicht dargestellt werden.

...die Gesamtsumme der Komponenten ist Bestandteil der Stückliste.
Wenn die Zeichnung Details sowohl für Hauptteile als auch für Einzelteile enthält, werden nur die Elemente aus dem Detail für das Hauptteil in die für die gesamte Zeichnung erstellte Stückliste aufgenommen.
Wenn die Zeichnung sowohl Details für Hauptteile als auch Übersichten enthält, werden nur die Elemente aus dem Detail für das Hauptteil in die für die gesamte Zeichnung erstellte Stückliste aufgenommen. Wenn Sie eine Stückliste für die Übersicht erstellen möchten, verwenden Sie dazu den Befehl Detailliste einfügen.
Wenn die Zeichnung sowohl Details für Einzelteile als auch Übersichten enthält, werden sämtliche Elemente aus diesen Ansichten in die Stückliste aufgenommen.
| Hauptteildetail | Einzelteildetails | |
![]() |
![]() |
|
| Übersichtsdetail | ||
![]() |
Befehl Detailliste einfügen | Befehl Zeichnungsliste einfügen |
![]() |
![]() |
|
| Befehl Detailliste einfügen | Befehl Zeichnungsliste einfügen | |
|---|---|---|
![]() |
Stückliste – Strukturierte Liste | Stückliste – Materialliste |
![]() |
![]() |
|
Bei Modellen ohne Nummern werden alle Mengen in der Liste im Singular angezeigt. In diesem Fall, basierend auf dem ausgewählten Stücklistenvorlagentyp, sind die Ergebnisse nur bedingt aussagekräftig.
![]() |
Stückliste – Trägerliste |
![]() |