LiveView-Übung: Flecken entfernen

In dieser Übung bereinigen Sie eine Zeichnung, indem Sie Flecken entfernen.

Anmerkung: Die Beispieldateien für das Erste-Schritte-Handbuch können unter https://www.autodesk.com/raster_design_getting_started_guide heruntergeladen werden. Laden Sie die Beispieldateien herunter und extrahieren Sie sie auf Ihrer Arbeitsstation, um sie in dieser Übung zu verwenden.
So entfernen Sie Flecken aus einem Bild
1

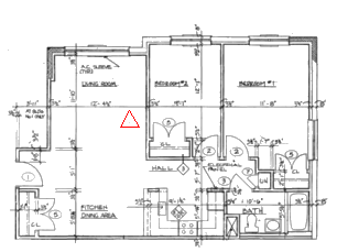
Öffnen Sie die Beispieldatei LiveView_Clean.dwg.

Diese Zeichnung enthält ein rotes Vektordreieck um einen der größten Flecken im Bild.

2 Vergrößern Sie die Anzeige, um den Fleck deutlich im roten Dreieck zu sehen.
3 Klicken Sie in der Multifunktionsleiste auf die Registerkarte Rasterwerkzeuge Gruppe Bearbeiten Dropdown-Menü Bereinigen Flecken entfernen.

Drücken Sie die Eingabetaste, um das gesamte Bild zu verarbeiten.

4 Klicken Sie auf den Fleck im roten Dreieck.

Das System meldet die Größe des Flecks (0,025 Zeicheneinheiten bzw. 5 Pixel) und markiert alle Flecken, die kleiner als dieser Wert sind und somit entfernt werden sollen.

5 Überprüfen Sie die Flecken im Bild per Pan und Zoom. Um die Markierung aufzuheben, klicken Sie auf die Flecken, die nicht entfernt werden sollen, z. B. auf den Punkt in A.C. MUFFE links oben.

Drücken Sie die Eingabetaste, um die markierten Flecken zu entfernen.

6 Oben links sehen Sie einige Flecken, die nicht entfernt wurden. Diese Flecken sind größer als derjenige, den Sie im roten Dreieck ausgewählt haben. Diese können Sie manuell löschen.