Video: Place Duct
Create a duct system by adding equipment, creating a logical system, and adding duct to create the physical system.
Video: Match Size or Elevation for Duct
Use the Inherit Size and Inherit Elevation tools to match duct size and elevation when snapping to existing ductwork.
Video: Add Dampers to MEP Fabrication Parts
When creating an MEP fabrication model, you can add, remove, or rotate integral damper blades using in-canvas controls that are specific to dampers.
Video: Fill Gaps in a Fabrication Model
Use Trim/Extend, Quick Connect, or Route and Fill to fill gaps in a fabrication model for ductwork, pipework, or electrical containment.
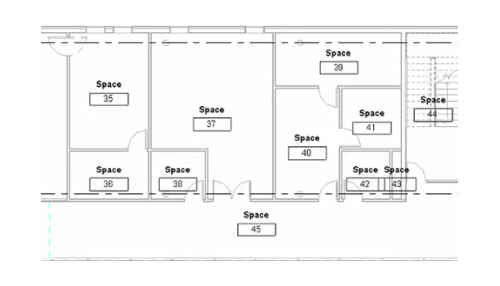
Video: Using the Space Naming Tool
The Space Naming tool assigns the names and numbers from architectural rooms to MEP spaces used for building performance analysis.