La fonction de documentation du modèle génère des dessins 2D associatifs à partir de modèles 3D AutoCAD et Inventor, ainsi que des dessins 2D non associatifs à partir de modèles 3D produits par plusieurs produits n'appartenant pas à Autodesk.
Le bloc de construction de base d'un dessin 2D de documentation du modèle est l'objet de vue de dessin.

Une vue de dessin est un objet rectangulaire qui contient une projection 2D du modèle 3D. Le bord de la vue de dessin est uniquement visible lorsque vous sélectionnez la vue ou lorsque vous y placez le curseur. Bien que la bordure de la vue de dessin figure sur le calque courant, elle n'est pas imprimée. La géométrie de la vue est toujours visible et est créée sur un jeu prédéfini de calques. Etant donné que la géométrie de la vue est associative avec le modèle 3D source, vous ne pouvez pas sélectionner la géométrie de la vue pour les modifier. Toutefois, vous pouvez modifier l'apparence de la géométrie de la vue en modifiant les propriétés des calques sur lesquels la géométrie de la vue est dessinée.
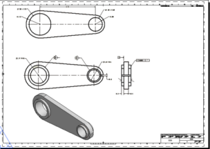
La première vue placée dans un dessin est qualifiée de vue de base. Les vues de base sont des vues de dessin dérivées directement du modèle 3D.

Dès lors qu'une vue de base est placée dans une présentation, vous pouvez générer des vues projetées à partir de celle-ci. Contrairement à une vue de base, les vues projetées ne sont pas directement dérivées du modèle 3D. Elles sont dérivées d'une vue de base (ou d'une autre vue projetée figurant déjà dans une présentation). Les vues projetées conservent une relation parent-enfant avec la vue à partir de laquelle elles ont été générées. Les paramètres d'une vue enfant sont dérivés de la vue parent. Si nécessaire, vous pouvez remplacer ces paramètres.
Vous pouvez également générer des vues en coupe et des vues de détail à partir de n'importe quelle vue de dessin existante. Une vue en coupe est une vue projetée qui affiche les détails intérieurs d'un modèle. Une vue de détail est une vue projetée qui agrandit une partie sélectionnée d'un modèle.
Après avoir créé les vues, vous pouvez attacher des notes, des cotes, des symboles et d'autres annotations à la géométrie de la vue.

Les vues de dessin ne sont pas concernées par les commandes de copie, mais elles peuvent être déplacées, pivotées ou supprimées comme n'importe quel autre objet.
Les vues de dessin créées dans une version plus récente d'AutoCAD ne peuvent pas être modifiées dans une version antérieure de ce logiciel. Par exemple, les vues de dessin créées dans AutoCAD 2014 ne peuvent pas être modifiées dans AutoCAD 2013, même si les deux versions d'AutoCAD enregistrent les fichiers dans le même format (AutoCAD 2013). Vous ne pouvez pas modifier les propriétés de la vue de dessin, ajouter de nouvelles vues de dessin ou mettre à jour des vues de dessin dans ce fichier de dessin.