Importation d'une vue de dessin à partir d'un autre logiciel de CAO

Il est possible d'importer une vue à partir d'un autre programme de CAO et de l'utiliser en tant que vue de dessin Revit. Vous pouvez ensuite référencer la vue de dessin d'un repère ou d'une coupe, et la placer sur des feuilles dans le jeu de documents de construction.

  1. Cliquez sur l'onglet Vuegroupe de fonctions Créer (Vue de dessin).
  2. Entrez le nom et l'échelle que vous souhaitez attribuer à la vue de dessin.
  3. Cliquez sur l’onglet Insérergroupe de fonctions Importer (Importer CAO).
  4. Sélectionnez le détail et le format CAO.
  5. Si la vue actuelle est une vue de détail, sélectionnez Vue actuelle uniquement.
    Remarque : Si la vue actuelle est une vue de dessin, cette option est automatiquement sélectionnée.
  6. Cliquez sur Ouvrir pour placer le détail de CAO.
  7. Si vous le souhaitez, faites glisser la vue sur la feuille.
  8. Vous pouvez faire référence à cette vue pour placer un repère ou une coupe.

Exemple architectural d'une vue de dessin importée

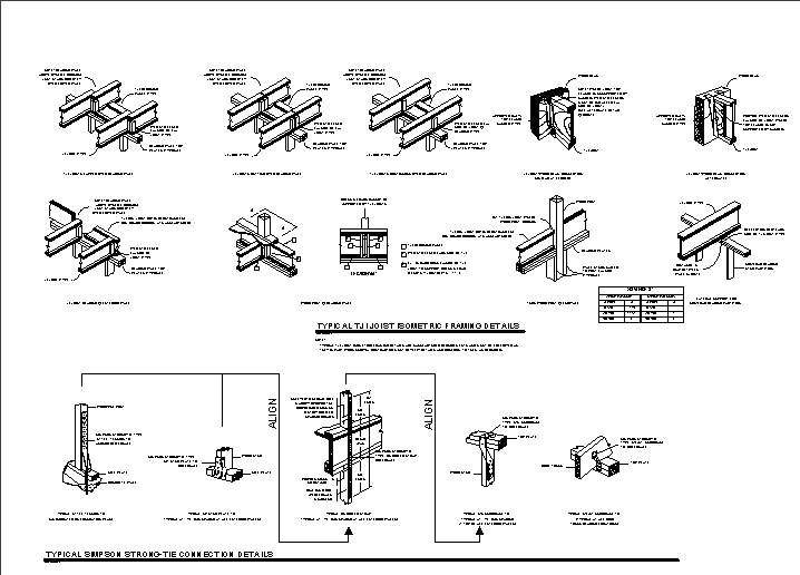
Exemple structurel d'une vue de dessin importée