Dans cet exercice, vous allez ajouter des cotes au modèle de bâtiment afin de coter le tracé du bâtiment principal.
|
Catégorie
|
Nouveaux utilisateurs
|
|
Temps nécessaire
|
15 minutes
|
|
Fichiers didacticiels utilisés
|
GSG_11_dimensions.rvt
|
|
Avant de commencer, téléchargez le fichier GSG_11_dimensions.rvt. Téléchargez ce fichier ZIP (si vous n’avez pas encore téléchargé les fichiers d’exercice des didacticiels).
Objectifs
- Coter la largeur du bâtiment.
- Utilisez l'option de quadrillages sécants avec une cote alignée afin d'inclure automatiquement les intersections de quadrillage lors de la cotation des murs extérieurs.
- Utiliser l’option Ouvertures avec une cote alignée pour inclure automatiquement des ouvertures de fenêtre lors de la cotation du mur extérieur.
Visionner la vidéo
Ajout de cotes
- Ouvrez un projet GSG_11_dimensions.rvt.
- Vérifiez que le plan d’étage 01 - Store Floor est ouvert.
- Cliquez sur l’onglet Annoter
groupe de fonctions Cote
(Alignée).
- Dans la barre des options, sélectionnez Faces du mur et, pour Choisir, sélectionnez Références individuelles.
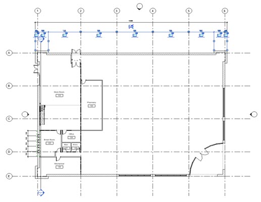
- Cotez la largeur du bâtiment :
- Cliquez sur la face extérieure du mur ouest.
- Cliquez sur la face extérieure du mur est.
- Placez le curseur au-dessus du bâtiment, puis cliquez pour placer la cote.
Quadrillages de cote
- Dans la barre des options :
- Cliquez sur l’onglet Annoter
groupe de fonctions Cote
(Alignée).
- Sélectionnez Murs entiers pour l’option Choisir.
- Cliquez sur Options.
- Dans la boîte de dialogue Options des cotes automatiques, choisissez Quadrillages sécants et cliquez sur OK.
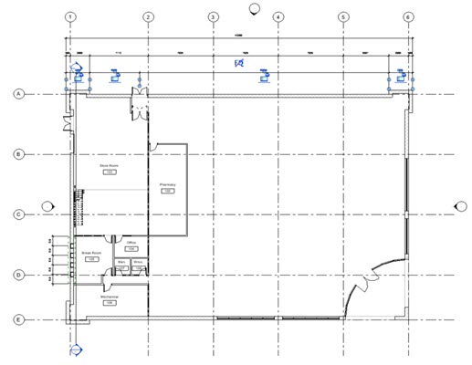
- Cotez les ouvertures de fenêtres et les intersections pour le mur sud :
- Cliquez sur le mur extérieur nord encastré.
- Cliquez sur les murs est et ouest.
- Placez le curseur au-dessus du bâtiment, puis cliquez pour placer la cote.
- Cliquez sur Modifier.
Dimensionner les cotes
- Dans la barre des options :
- Cliquez sur l’onglet Annoter
groupe de fonctions Cote
(Alignée).
- Sélectionnez Murs entiers pour l’option Choisir.
- Cliquez sur Options.
- Dans la boîte de dialogue Options des cotes automatiques, sélectionnez Ouvertures et cliquez sur OK.
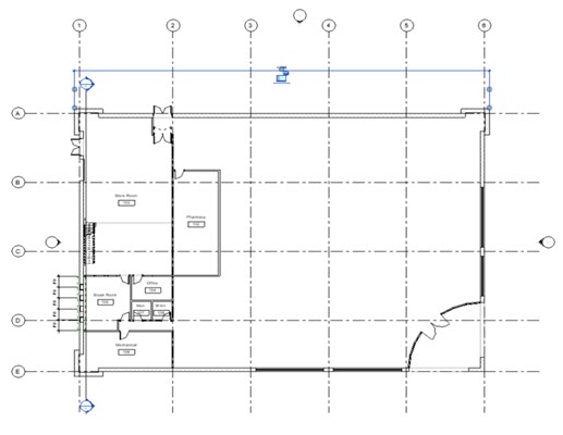
- Cotez les ouvertures de fenêtres et les intersections pour le mur sud :
- Cliquez sur le mur extérieur nord encastré.
- Cliquez sur les murs est et ouest.
- Placez le curseur au-dessus du bâtiment, puis cliquez pour placer la cote.
- Cliquez sur Modifier.
Partie 12 : Ajout de notes