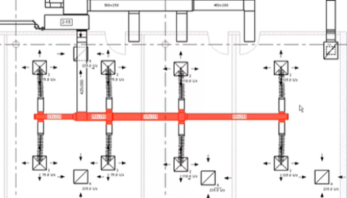
Video: aggiunta di smorzatori alle parti di fabbricazione MEP
Quando si crea un modello di fabbricazione MEP, è possibile aggiungere, rimuovere o ruotare gli smorzatori a lame integrali utilizzando controlli dell'area di disegno specifici per gli smorzatori.