Consente di visualizzare temporaneamente i vincoli di quota e di allineamento in una vista, per risolvere problemi o modificare elementi nel modello. 
  
- Nella barra dei controlli della vista, fare clic su  (Mostra vincoli).  
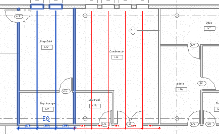
		    L'area di disegno Mostra vincoli visualizza un bordo colorato, ad indicare che è attiva la modalità Mostra vincoli. Tutti i vincoli vengono visualizzati a colori, mentre gli elementi del modello vengono visualizzati con mezzitoni (in grigio). (Mostra vincoli).  
		    L'area di disegno Mostra vincoli visualizza un bordo colorato, ad indicare che è attiva la modalità Mostra vincoli. Tutti i vincoli vengono visualizzati a colori, mentre gli elementi del modello vengono visualizzati con mezzitoni (in grigio).Nota: Per semplificare la visualizzazione dei vincoli in questa modalità, verificare che l'opzione di visualizzazione Linee sottili non sia selezionata (scheda Vista  gruppo Grafica    Linee sottili). 
			  
 
- Selezionare un vincolo per evidenziare gli elementi vincolati. 
		   Nell'esempio riportato di seguito, il vincolo a sinistra è selezionato e sono evidenziati anche i due muri vincolati e le due finestre vincolate. 
			 
 
		  
- Facoltativo: per rimuovere il vincolo è sufficiente eliminarlo oppure sbloccarlo. 
		    
			 Nota: I vincoli aggiunti in modalità di disegno per un elemento vengono visualizzati con mezzitoni a colori. Fare doppio clic sull'elemento per attivare la modalità di disegno e quindi modificare o rimuovere il vincolo. 
			  
- Nella barra dei controlli della vista, fare clic su  per disattivare la modalità Mostra vincoli. per disattivare la modalità Mostra vincoli.