Esaminare diversi esempi di workflow di quotatura di parti di montaggio nelle viste di disegni esecutivi di prefabbricati.
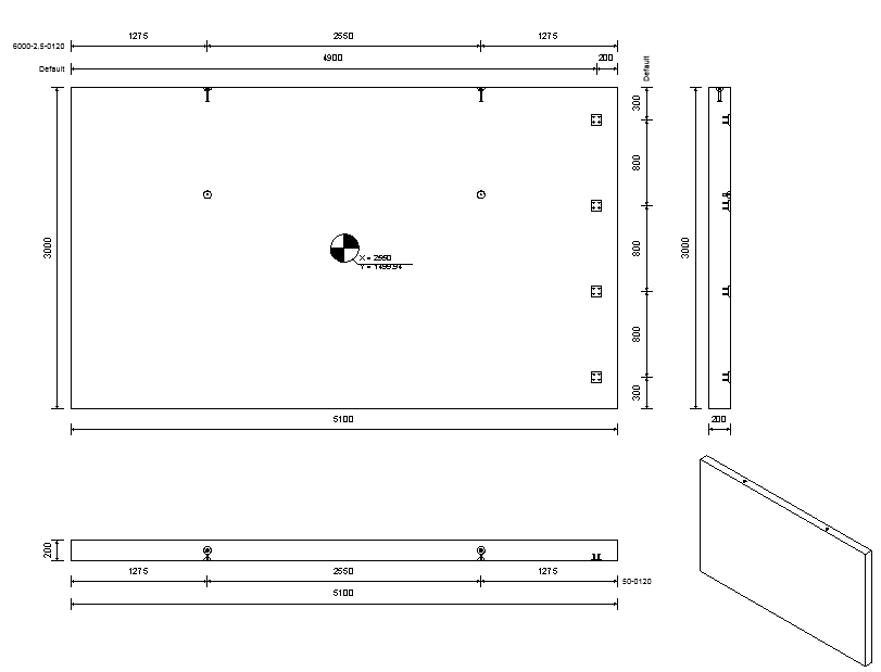
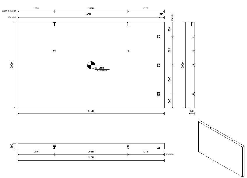
Le quote di tutte le parti di montaggio della stessa famiglia verranno posizionate su una linea, se le parti di montaggio si trovano sullo stesso lato dell'host. Il riferimento per questo posizionamento è il centro dell'elemento. Tutte le parti di montaggio con lo stesso nome di famiglia che si trovano sopra il centro dell'host verranno quotate sopra l'elemento. Le parti di montaggio sotto il centro verranno quotate sotto l'elemento. La stessa regola è valida per le linee di quota verticali. I punti di quota sulle estensioni dell'host vengono aggiunti alla linea di quota, oltre ai punti di quota delle parti di montaggio (un punto a sinistra e a destra o uno in alto e in basso).



gruppo Segmentazione
(Dividi) per dividere il muro.
gruppo Connessioni
(Parti di montaggio) per aggiungere le piastre di ancoraggio nell'assieme.
gruppo Fabbricazione
(Disegni esecutivi) per creare un disegno esecutivo per l'assieme.

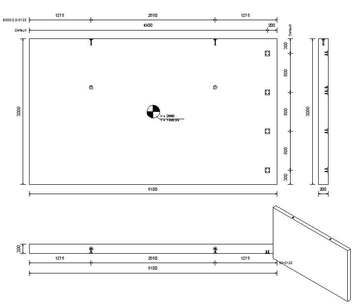
In base al nome della sottocategoria, le linee di quota devono essere create solo durante la visualizzazione delle piastre di ancoraggio dall'alto (come visualizzate nella famiglia). In questo esempio, il muro è solo nella vista frontale.


Impostare una sottocategoria e il parametro della visibilità come nel primo esempio.
gruppo Segmentazione
(Dividi) per dividere il muro.
gruppo Connessioni
(Parti di montaggio) per aggiungere le piastre di ancoraggio nell'assieme.
gruppo Fabbricazione
(Disegni esecutivi) per creare un disegno esecutivo per l'assieme.

gruppo Fabbricazione
(Disegni esecutivi) per creare un disegno esecutivo per l'assieme.

Le estensioni delle piastre di ancoraggio vengono quotate in tutte le viste (utilizzando una quota, poiché si tratta sempre della stessa famiglia).
Nelle viste dall'alto e frontale, solo la piastra viene quotata (senza gli ancoraggi) poiché in queste viste sono visibili solo le superfici rotonde degli ancoraggi, senza fornire così riferimenti alla quota.


gruppo Segmentazione
(Dividi) per dividere il muro.
gruppo Fabbricazione
(Disegni esecutivi) per creare un disegno esecutivo per l'assieme.
