Quando si inserisce una vista in una tavola, è possibile nascondere parti della vista e mettere in risalto un'area specifica.
Utilizzare uno o entrambi i metodi descritti di seguito.
Duplica. Aprire la vista duplicata e applicare le regioni di taglio e le mascherature desiderate. Posizionare quindi la vista duplicata sulla tavola.
Viste prospettiche 3D. Il parametro Ritaglia vista deve essere selezionato in una vista prospettica in modo da essere posizionato su una tavola. Una volta posizionato in una tavola, il parametro Ritaglia vista non potrà essere modificato per la vista. Analogamente, se si modifica una vista parallela 3D su una tavola in una vista prospettica, il parametro Ritaglia vista viene abilitato automaticamente.
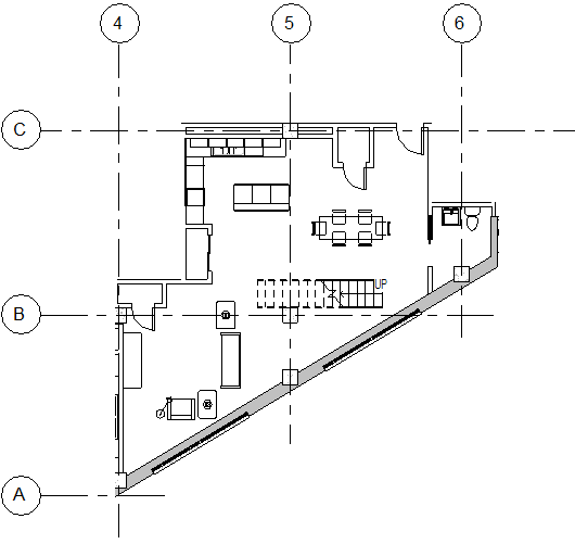
Nella seguente pianta del pavimento, una regione di taglio non rettangolare nasconde geometria del modello non rilevante nell'angolo superiore destro e superiore sinistro dell'appartamento.
