In questo esercizio, si completa l'interno del modello aggiungendo una scala al mezzanino nel livello inferiore, quindi modificando la ringhiera sul mezzanino.
|
Categoria
|
Nuovi utenti
|
|
Tempo richiesto
|
15 minuti
|
|
File delle esercitazioni utilizzati
|
GSG_09_stairs_railings.rvt
|
|
Prima di iniziare, scaricare il file GSG_09_stairs_railings.rvt. Scaricare questo file ZIP (se non sono già stati scaricati i file degli esercizi per le esercitazioni).
Obiettivi
- Creare una scala tra il piano del negozio e il mezzanino.
- Modificare la ringhiera delle scale per includere il mezzanino.
- Modificare il tipo di ringhiera per impostare una ringhiera circolare.
Guarda il video
Creazione di scale
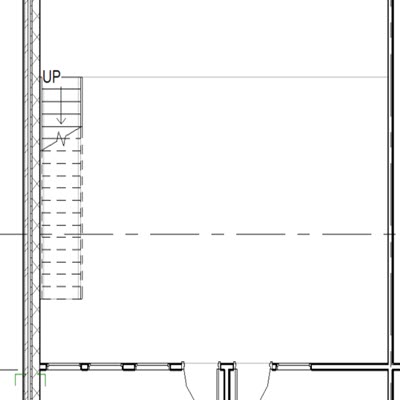
- Aprire il progetto GSG_09_stairs_railings.rvt.
- Verificare che sia aperta la pianta del pavimento 01 - Store Floor.
- Fare clic sulla scheda Architettura
gruppo Distribuzione verticale
(Scala).
- Nella tavolozza Proprietà, in Vincoli:
- In Livello di base, selezionare 01 - Store Floor.
- In Livello superiore selezionare Mezzanine.
- Sulla barra delle opzioni, impostare la linea di ubicazione su Rampa: a sinistra.
- Nel locale del negozio, fare clic sull'angolo del mezzanino sottostante per avviare la creazione della rampa di scale.
- Spostare il cursore verso il basso fino a quando nella descrizione comando non viene indicato che vi sono 0 alzate rimanenti e fare clic per specificare il punto finale della scala.
- Nel gruppo Modalità, fare clic su
(Termina modalità di modifica).
Modifica del tipo di ringhiera
- Nella barra degli strumenti Accesso rapido, fare clic su
(Vista 3D di default).
- Selezionare il tetto piano, quindi utilizzare
(Nascondi/Isola temporaneamente) sulla barra dei controlli della vista e selezionare Nascondi elemento.
- Selezionare la ringhiera sul lato della scala vicino al muro.
- Nel Selettore di tipo, selezionare 900 mm Pipe Wall.
- Fare clic su Elimina tipo nella finestra di dialogo di avviso.
- Selezionare la ringhiera sull'altro lato della scala.
- Nel Selettore di tipo, selezionare 900 mm Pipe.
Parte 10 - Creazione di viste