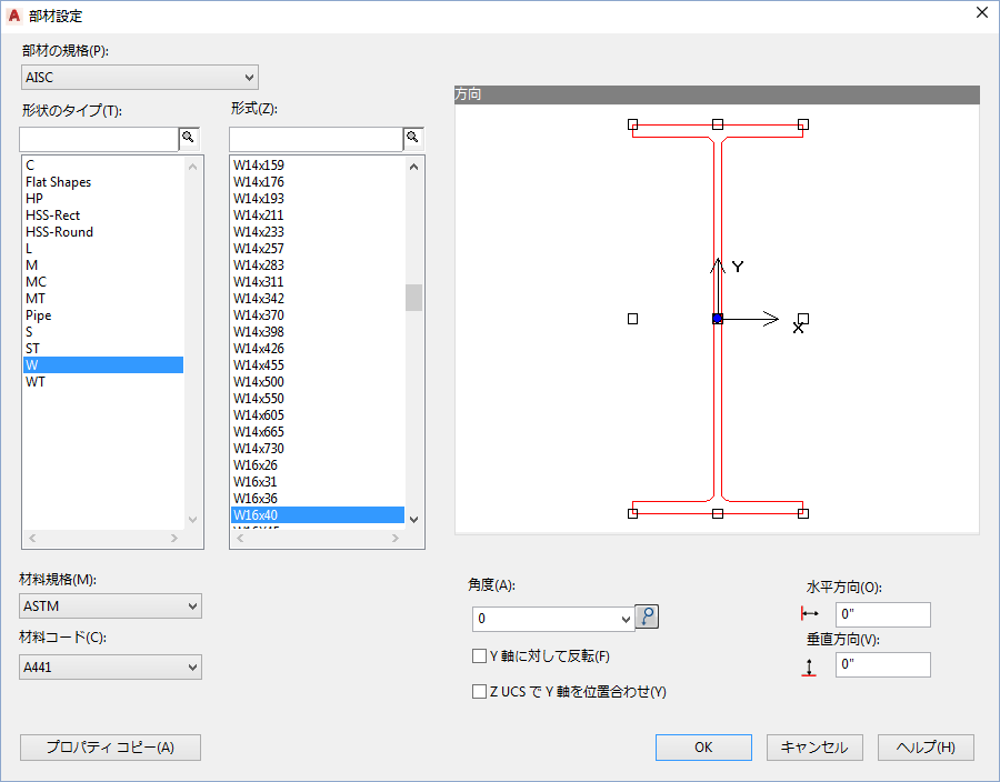
構造部材を編集します。

部材の規格を編集します。
形状のタイプを編集します。
形式を編集します。
部材の材料規格を編集します。
部材の材料コードを編集します。
角度値を編集します。現在の値を 90 度増加するには、
をクリックします。
部材の方向を反転します。
Y 軸を Z UCS に揃えて、部材の方向を設定します。
元の水平位置を、入力した値に変更します。
元の垂直位置を、入力した値に変更します。
作図領域内の部材をクリックするように求めるプロンプトが表示されます。部材をクリックすると、クリックした部材と同一の値が各フィールドに設定されます。
構造オブジェクトに適用した選択済みオプションのプレビューが表示されます。