[ダクト]オプションを使用して、ダクトの高さと寸法を編集します。
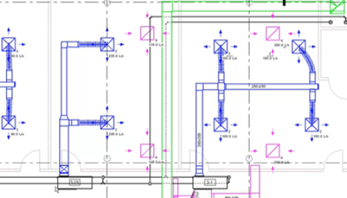
ダクト システムを作成するには、設備を追加し、論理システムを作成して、ダクトを追加することによってその物理システムを作成します。
[サイズを継承]ツールおよび[高さを継承]ツールを使用して、既存のダクト経路にスナップする際にサイズと高さを一致させます。
圧力レポートは、システムを評価し、システム要素の損失係数を提示します。
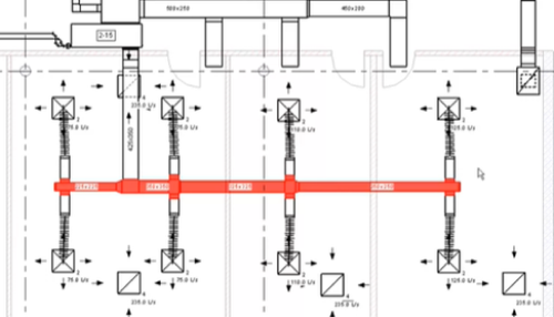
ダクト ルートを使用して、ダクト経路のおおよその位置を示します。
MEP システムを分割すると Revit のシステム パフォーマンスが向上する可能性があります。
[ダクトを修正]パネルを使用して、断熱材やライニングをダクトのセグメントまたは経路全体に追加します。
計算アドインを使用して配管またはダクトの圧力損失を計算します。
電力システムを作成するための電線管をモデルに追加します。
既存の電線管経路に平行電線管を配置します。
回路パスを編集して、正確な電気システムの計算を行います。
P&ID モデラーで、モデルの設定を定義してマッピングを管理します。
P&ID タグを設定し、要素をマッピングして、モデルに配管セグメントを追加します。
Revit のツールを使用して、MEP 製造の意図を反映したモデルを作成し、施工図作成者と共有することができます。
MEP 製造モデルを作成する際、ダンパー固有のキャンバス内コントロールを使用して、統合ダンパー ブレードを追加、削除、または回転することができます。
モデル内に吊材を配置し、コントロールを使用して他の MEP 要素との干渉を回避します。
プロパティ パレットまたは[パーツを編集]ツールを使用して、接続済みの製造用パーツのサイズを変更します。
Revit の MEP 要素を含む設計モデルを、LOD 400 MEP 製造用部品を含む MEP 製造モデルに変換します。
ダクト、配管、または電気格納の製造用部品モデル内のギャップを埋めるには、[トリム/延長]、[クイック接続]、または[ルートとギャップ充填]を使用します。
モデル内で点をクリックして、接続されている MEP 製造用パーツの経路を作成します。
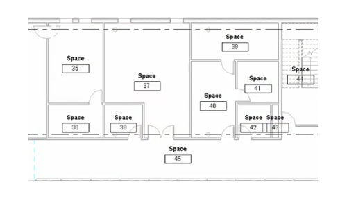
[スペース名の設定]ツールにより、建築モデルの部屋の名前と番号を、建物パフォーマンス解析に使用される MEP モデルのスペースに割り当てることができます。