寸法や位置合わせの拘束をビューに一時的に表示し、モデルの要素のトラブルシューティングや修正を行います。
- ビュー コントロール バーで
(拘束の一時表示)をクリックします。
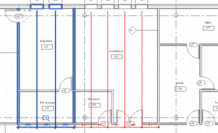
[拘束の一時表示]作図領域には色付きで境界が表示され、[拘束の一時表示]モードを使用していることを示します。すべての拘束が色付きで表示され、モデル要素はハーフトーン(グレー)で表示されます。
注: このモードで拘束を見やすくするために、[細線]表示オプションが選択されていないことを確認します([表示]タブ

[グラフィックス]パネル


[細線])。
- 拘束された要素をハイライト表示するには、拘束を選択します。
次の例では、左側の拘束が選択されており、拘束されている 2 つの壁と 2 つの窓もハイライト表示されています。
- 省略可能: 拘束を削除するには、単に拘束を削除するか、ロックを解除します。
注: スケッチ モードで要素に追加した拘束はハーフトーン カラーで表示されます。拘束を修正または削除するためにスケッチ モードに切り替えるには、要素をダブルクリックします。
- ビュー コントロール バーで、
をクリックして[拘束の一時表示]モードを終了します。