도면 작업을 수행할 때 줌 및 초점이동을 자주 수행하게 되므로 이러한 작업을 가능한 한 효율적으로 수행하는 것이 중요합니다. 표시되는 내용을 조정하는 데 사용할 수 있는 몇 가지 놀라운 기술이 있습니다.
휠 마우스를 사용하여 줌 및 초점이동하는 데 이미 익숙한 경우, 당사가 받은 피드백에 따라 몇 가지 팁이 큰 도움이 될 수 있습니다. 먼저, 다음과 같은 두 가지 기본 팁을 참조하십시오.

다음과 같은 방법으로 초점이동 및 줌을 조합하여 필요한 초점이동 작업을 줄일 수 있습니다.

이 기술을 사용하면 줌 확대할 때 관심 영역이 도면 중앙 쪽으로 이동합니다.
또한 휠 마우스를 사용하여 영역을 줌 확대 또는 줌 축소하는 속도를 줄일 수 있도록 해달라는 요청도 많이 받았습니다.
이렇게 하면 마우스 휠을 사용하여 좀 더 원활하고 세밀하게 조정할 수 있습니다.
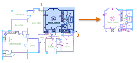
일부 도면은 크고 복잡해서 시각적으로 혼동을 일으킬 수 있습니다. 이로 인해 초점이동 및 줌할 때 작업 속도가 느려지고 실수할 수 있게 됩니다. 일반적으로 현재 필요하지 않은 도면층은 끄거나 동결합니다. 객체 분리 기능을 사용하여 도면의 영역을 일시적으로 숨길 수 있다는 사실을 알고 계셨습니까?

객체 분리 작업을 수행하면 선택한 객체를 제외한 모든 객체가 숨겨집니다.


현재 뷰 탭의 탐색 패널에서 이전 뷰 간을 앞뒤로 전환할 수 있습니다. 그러나, 이 패널은 기본적으로 숨겨져 있습니다. 탐색 패널을 표시하려면 다음 단계를 수행합니다.

보이는 것처럼 이러한 버튼은 특히 두 개 또는 세 개의 뷰 사이를 반복적으로 전환하는 경우에 유용합니다.
빠른 액세스 도구 모음에서 이전 뷰 간을 앞뒤로 전환할 수 있다면 정말 좋지 않을까요?

다행히 설정이 간단합니다!



예를 들어, 뒤로 보기의 특성은 다음과 같아야 합니다.

이전 뷰의 맨 처음 또는 맨 끝에 도달하면 이러한 두 매크로로 인해 뒤로 보기 및 앞으로 보기 버튼이 흐리게 표시됩니다.
이러한 두 개의 버튼을 추가하면 특히 한 영역을 반복해서 줌 확대 및 줌 축소해야 하는 경우에 효율성을 개선할 수 있습니다.
시스템 변수를 설정하거나 사용자 버튼을 작성하여 줌 및 초점이동 작업의 동작을 제어할 수 있습니다. 다음은 줌 및 초점이동과 관련하여 가장 일반적으로 사용되는 명령과 시스템 변수입니다.
| 명령 | 설명 |
|---|---|
| PAN | 뷰 방향이나 배율을 변경하지 않고 뷰를 이동합니다. |
| VTOPTIONS | 뷰의 변경 사항을 부드러운 전환으로 표시합니다. |
| ZOOM | 현재 뷰포트에 있는 뷰의 배율을 늘리거나 줄입니다. |
| 시스템 변수 | 설명 | 기본값 | 저장 위치 |
|---|---|---|---|
| MBUTTONPAN | 포인팅 장치에서 세 번째 버튼 또는 휠의 동작을 조정합니다. | 1 | 레지스트리 |
| VTDURATION | 부드럽게 뷰 전환의 시간을 밀리초 단위로 설정합니다. | 750 | 레지스트리 |
| VTENABLE | 부드럽게 뷰 전환이 사용되는 시점을 조정합니다. | 3 | 레지스트리 |
| VTFPS | 부드럽게 뷰 전환의 최소 속도를 초당 프레임 수로 설정합니다. | 7 | 레지스트리 |
| ZOOMFACTOR | 마우스 휠을 앞뒤로 움직일 때 배율이 변경되는 정도를 조정합니다. | 60 | 레지스트리 |
| ZOOMWHEEL | 가운데 마우스 휠을 스크롤하면 투명 줌 작업의 방향을 전환합니다. | 0 | 레지스트리 |
AutoCAD 도움말 시스템을 사용하여 나열된 시스템 변수의 지원되는 값과 이러한 명령에 대해 자세히 알아봅니다. 시스템 변수 설정을 사용하여 자신의 요구 사항에 가장 적합한 항목을 찾아볼 수 있습니다.