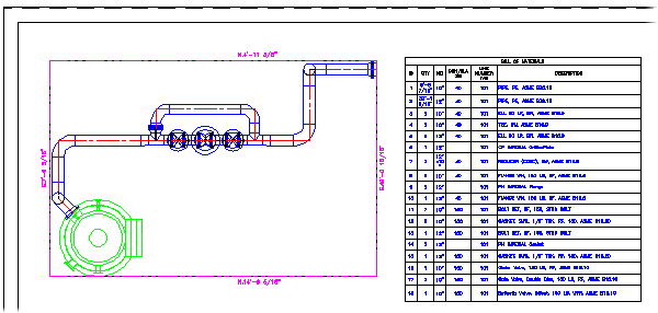
직교 BOM 테이블을 작성합니다.
리본: 직교 뷰 탭
테이블 설정 
명령 입력:
plantorthoplacebom 다음과 같은 프롬프트가 표시됩니다.
뷰포트 선택: 직교 뷰포트를 선택합니다.
배치할 테이블 선택 [재료 명세서(BOM)/장비/노즐/스틸/스풀] <재료 명세서(BOM)>: 직교 도면에 작성할 BOM 테이블을 지정합니다.
첫 번째 구석 지정: 직교 BOM 테이블의 왼쪽 위를 지정합니다.
두 번째 구석 지정: 테이블 폭을 지정합니다. 지정한 높이는 무시됩니다.
