프리캐스트 시공 도면 뷰에서 마운팅 부품의 치수를 기입하는 여러 워크플로우의 예를 검토하십시오.
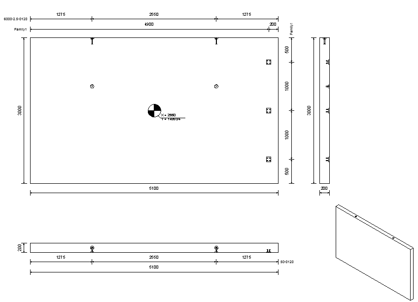
마운팅 부품이 호스트의 동일한 면에 배치된 경우 같은 패밀리의 모든 마운팅 부품의 치수가 한 선에 배치됩니다. 이 배치를 위한 참조가 요소의 중심이 됩니다. 호스트의 중심 상단에 있고 패밀리 이름이 같은 모든 마운팅 부품은 요소의 상단에 치수가 기입됩니다. 중심 아래에 있는 마운팅 부품은 요소 아래에 치수가 기입됩니다. 수직 치수선에는 같은 규칙이 적용됩니다. 호스트의 범위에 있는 치수점은 마운팅 부품의 치수점 외에 치수선에도 추가됩니다(왼쪽 및 오른쪽으로, 또는 상단 및 아래로 한 점).



분할 패널
(분할)을 클릭하여 벽을 분할합니다.
연결 패널
(마운팅 부품)을 클릭하여 조합에 앵커 플레이트를 추가합니다.
제작 패널
(시공 도면)을 클릭하여 조합의 시공 도면을 작성합니다.

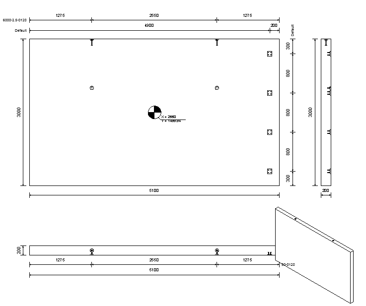
하위카테고리의 이름에 따라 상단에서 앵커 플레이트를 볼 때만 치수선을 작성해야 합니다(패밀리에 표시되는 것처럼). 이 예에서 보는 벽의 경우 전면 뷰에만 표시됩니다.


첫 번째 예와 같이 하위카테고리와 가시성 매개변수를 설정합니다.
분할 패널
(분할)을 클릭하여 벽을 분할합니다.
연결 패널
(마운팅 부품)을 클릭하여 조합에 앵커 플레이트를 추가합니다.
제작 패널
(시공 도면)을 클릭하여 조합의 시공 도면을 작성합니다.

제작 패널
(시공 도면)을 클릭하여 조합의 시공 도면을 작성합니다.

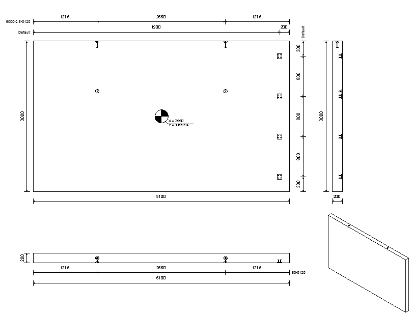
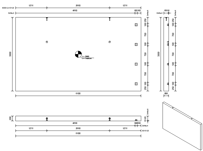
모든 뷰에서 앵커 플레이트 범위의 치수가 기입됩니다(항상 같은 패밀리이기 때문에 한 가지 치수 사용).
상단 면 뷰 및 전면 뷰에서는 앵커의 둥근 면만 표시되므로 치수에 대한 참조를 제공하지 않고 플레이트 치수만(앵커 없이) 기입됩니다.


분할 패널
(분할)을 클릭하여 벽을 분할합니다.
제작 패널
(시공 도면)을 클릭하여 조합의 시공 도면을 작성합니다.
