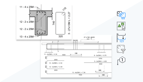
철근 배근 도면에 구부림 상세정보를 추가하여 정확한 철근 구부림 및 설치 지침을 작성합니다.
리본의 전용 도구를 사용하여 뷰 자르기 영역 내부 또는 외부의 평면도, 단면도 및 입면도에 구부림 상세정보를 배치할 수 있습니다. 철근 배근 도면 요구 사항에 가장 잘 부합하도록 보강 철근 구부림 상세정보에 대한 매개변수를 수정합니다.

이 기능은 Ideas 포럼에서 고객이 제안했으며 제품 로드맵에 설명되어 있습니다.
철근 배근 도면의 보강 철근 구부림 상세정보를 참고하십시오.