분야 특성에 따라 분야별 요소가 뷰에 표시되는 방법이 결정됩니다.
분야 특성을 사용하여 다음 동작을 제어합니다.
분야 특성은 여러 분야를 통합하는 단일 모델을 사용하든 다른 분야 특정 모델로의 모델 링크를 사용하든 뷰에 영향을 줍니다.
또한 이 특성을 사용하여 프로젝트 탐색기에서 뷰를 구성할 수 있습니다. 프로젝트 탐색기에서 뷰 구성을 참고하십시오.
뷰에 대한 분야 특성을 설정하려면 프로젝트 탐색기에서 뷰 이름을 선택하거나 뷰를 엽니다. 특성 팔레트에서 분야 특성이 그래픽 섹션에 나열됩니다. 리스트에서 값을 선택합니다.
아래 예는 다음이 레벨 1 단면도인 모델을 기반으로 합니다. 구획도에서 초록 화살표는 해당 평면도에 대한 전체 뷰 범위를 나타냅니다. 피랑 화살표는 천장 위에서 천장속까지 확장된 1차 뷰 범위와 아래 레벨 1을 나타냅니다. 주황색 화살표는 뷰 깊이를 나타냅니다. 뷰 범위 정보를 참고하십시오. 아래의 샘플 평면 뷰에서 상세 수준이 높음으로 설정되어 있어 기계, 전기 및 파이프 요소가 설명 목적으로 완전히 표시됩니다.

기존 뷰에 기반하여 뷰를 작성할 때 새 뷰는 원래 뷰의 분야를 상속합니다. 이 규칙은 콜아웃, 구획도, 입면도 및 복제된 뷰에 적용됩니다.
예를 들어 구조 평면 뷰(분야 특성이 구조로 설정된 평면 뷰)를 열고 단면 도구를 사용하여 평면 뷰의 단면을 작성한다고 가정합니다. 새 단면 뷰의 분야 특성도 구조로 설정됩니다.
뷰 태그(구획도, 입면도 및 콜아웃을 표시하는 데 사용되는 기호)는 현재 뷰의 분야가 대상 뷰의 분야와 일치하는 경우에만 뷰에 표시됩니다. 아래 예를 참고하십시오.
분야 특성이 건축으로 설정될 경우:
예를 들어 뷰는 건축 기둥과 구조 기둥뿐만 아니라 기계, 전기 및 파이프 요소를 표시합니다.
예: 다음 건축 평면도에서:
벽의 한 측면에 케이블 트레이가 노출됩니다. 벽의 다른 쪽 측면에서는 케이블 트레이가 건축 피복으로 가려집니다.
분야 특성이 건축으로 설정된 단면에 대한 태그 화면표시입니다. 평면도는 다른 분야에 지정된 뷰에 대한 태그를 표시하지 않습니다.
분야 특성이 구조로 설정될 경우:
예를 들어 뷰는 건축 기둥과 구조 기둥뿐만 아니라 기계, 전기 및 파이프 요소를 표시합니다.
예: 다음 구조 평면 뷰에서:
비구조 벽은 표시되지 않습니다. (위에 표시된 건축 평면도와 비교합니다.)
분야 특성이 구조로 설정된 단면에 대한 태그 화면표시입니다. 평면도는 다른 분야에 지정된 뷰에 대한 태그를 표시하지 않습니다.
은선이 표시되어 평면 뷰 범위가 레벨 1 아래로 확장되므로 바닥 아래 구조 프레임 요소를 표시합니다.

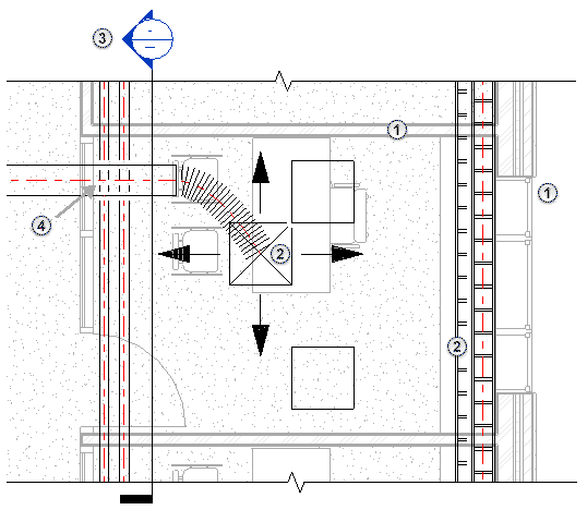
분야 특성이 기계, 전기 또는 위생기구로 설정될 경우:
예: 다음 기계 평면 뷰에서:
건축 및 구조 요소(벽, 문, 창, 가구)는 뷰 범위에 기반하여 중간색으로 표시됩니다. 천장 요소는 뷰에 표시되지 않습니다.
기계, 전기 및 파이프 요소가 객체 스타일에 정의된 대로 표시됩니다. 이러한 요소는 모델에서 실제 수직 위치와 상관없이 다른 요소에 중첩됩니다.
분야 특성이 기계로 설정된 단면에 대한 태그 화면표시입니다. 평면도는 다른 분야에 지정된 뷰에 대한 태그를 표시하지 않습니다.
기계, 전기 및 파이프 요소에 대한 은선이 뷰에 표시됩니다.

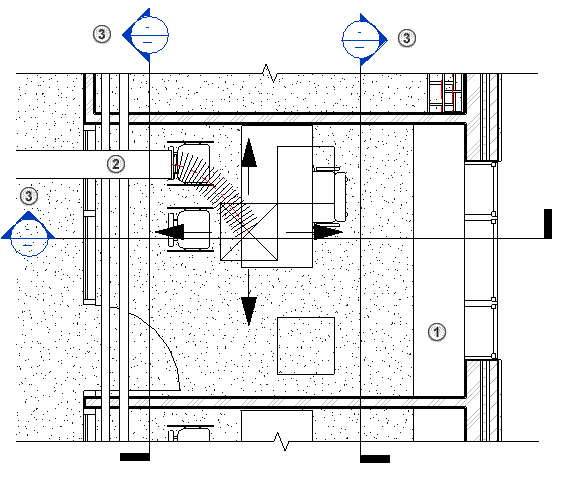
분야 특성이 조정으로 설정될 경우:
예를 들어 뷰는 건축 기둥과 구조 기둥뿐만 아니라 기계, 전기 및 파이프 요소를 표시합니다.
뷰 범위 내 일부 기계, 전기 및 파이프 요소는 절단 기준면이 이들 요소와 교차하는지 여부와 상관없이 표시됩니다.
뿐만 아니라 절단 기준면 위에 있는 기계, 전기 및 파이프 요소도 다른 요소 위에 그려집니다. 이러한 요소 중에서 그리기 순서는 뷰 레벨에서의 상대적 높이로 정의됩니다. 이러한 요소가 절단 기준면 아래에서 적용될 때 요소는 절단 기준면과의 거리와 관련된 순서로 그려집니다.
예: 다음 좌표 평면 뷰에서:
모든 분야의 요소가 뷰 범위에 따라 뷰에 표시됩니다.
기계, 전기 및 파이프 요소가 표시되어 위에 설명된 규칙에 따라 다른 요소를 중첩합니다.
모든 분야의 구획도에 대한 태그가 표시됩니다.
