상세 뷰는 다른 뷰에서 콜아웃이나 단면으로 표시되는 모델의 뷰입니다. 이러한 뷰 유형은 일반적으로 상위 뷰보다 더 상세한 축척으로 모델을 나타내며
상세 뷰는 단면이나 콜아웃로 작성될 수 있으며 콜아웃으로 작성했을 때 상세는 단면과 콜아웃 주석을 모두 지정할 수 있습니다. 즉, 콜아웃로 작성된 상세 뷰는 콜아웃 뷰 범위를 교차하는 뷰에서 단면으로 표시될 수도 있습니다. 예를 들어 콜아웃을 사용하여 벽 교차의 상세도를 만들 수 있습니다. 이러한 동일 콜아웃은 전체 건물 단면뷰에서 단면뷰로 나타날 수 있습니다.
상세 뷰 태그의 가시성은 상위 뷰의 축척 및 상세 뷰 자르기 경계의 교차 여부에 따라 달라지며 전적으로 상위 뷰의 축척 내에 있습니다. 상세 뷰 매개변수 다음보다 낮은 축척에서 숨기기는 상세가 다른 뷰에서 표시되거나 숨겨지는 축척을 설정합니다. 예를 들어, 1/4"=1'0"보다 낮은 축척에서 상세 태그를 숨기도록 설정된 경우 축척이 1/8" = 1'-0"으로 설정된 뷰에는 상세 태그가 표시되지 않습니다.
상세도를 콜아웃이나 단면으로 그렸는지 여부에 상관없이 모든 상세도는 프로젝트 탐색기에서 상세도로 표시됩니다.
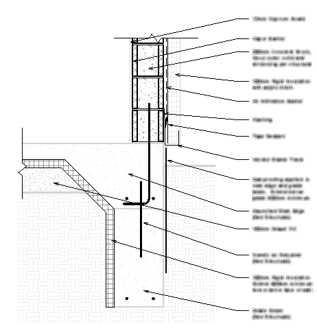
다음 이미지는 모델 형상과 함께 벽 단면 상세정보의 샘플을 언더레이(중간색) 및 모델 요소 위에 그려진 추가 2D 상세 구성요소로 나타냅니다.
