이 연습에서는 여러 레벨에서 작업을 수행하여 외부 벽, 내부 벽 및 복도를 프로젝트에 추가합니다.
|
범주
|
새 사용자
|
|
소요 시간
|
15분
|
|
사용되는 튜토리얼 파일
|
GSG_02_Create_Walls.rvt
|
|
시작하기 전에 GSG_02_Create_Walls.rvt 데이터 파일을 다운로드합니다. 튜토리얼용 연습 파일을 아직 다운로드하지 않은 경우 이 zip 파일을 다운로드합니다.
목표
- 선택한 점을 사용하여 외부 벽을 그려서 추가합니다.
- 벽 도구를 사용하여 하위 레벨에 내부 벽을 추가합니다.
- 자르기/연장 도구를 사용하여 복도의 개구부를 작성합니다.
비디오 보기
외부 벽 수정
- 3D 뷰에서 건물 코너의 벽을 선택합니다. 포함 창 선택을 사용하여 Ctrl 키를 누른 상태에서 선택 항목에 벽을 추가합니다.
- 특성 팔레트에서 상단 구속조건에 대해 04 - 상단 파라펫을 선택하고 적용을 클릭합니다.
- Esc 키를 눌러 벽의 선택을 취소합니다.
- 건물 앞면 오른쪽 코너에서 벽 2개를 선택합니다. 특성 팔레트에서 베이스 간격띄우기를 4250mm로 설정합니다.
- 유형 선택기에서 벽 유형을 외부 - 입구에서 블록 벽돌 렌더로 변경합니다.
내부 벽 추가
- 프로젝트 탐색기에서 평면도 아래에 있는 01 - 상점 바닥을 두 번 클릭합니다.
- 건축 탭
작성 패널
(벽)을 클릭합니다.
- 유형 선택기에서 내부 - 138mm 칸막이(1시간)를 선택합니다.
- 옵션 막대에서 다음을 수행합니다.
- 높이는 03 하단 파라펫을 선택합니다.
- 위치선에 대해 벽 중심선을 선택합니다.
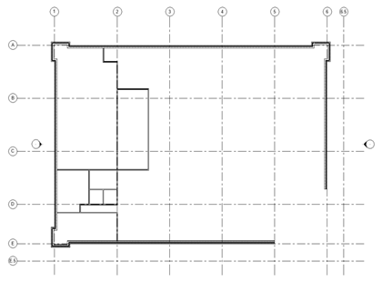
- 다음 이미지를 참고하여 내부 벽을 배치하여 룸을 작성합니다.
- 정확한 배치는 중요하지 않습니다.
- 벽을 배치할 때 체인 옵션을 활성화하거나 비활성화하는 것이 유용할 수 있습니다. 체인을 사용하면 여러 벽을 끝과 끝 맞춤에 배치할 수 있습니다. 체인을 비활성화한 상태에서는 각 벽의 두 끝점을 지정해야 합니다. 두 가지 설정으로 실험합니다.
- 벽을 수정하여 복도를 작성합니다.
(수정)을 클릭하여 명령을 완료합니다.
3부: 지형 및 건물 패드 작성