이 연습에서는 외부 벽의 외곽설정을 사용하여 평지붕을 작성하고 입구 부분에 돌출부가 있는 경사 지붕을 작성합니다.
|
시작하기 전에 GSG_05_add_roof.rvt 파일을 다운로드합니다. 튜토리얼용 연습 파일을 아직 다운로드하지 않은 경우 이 zip 파일을 다운로드합니다.
목표
지붕 드롭다운
(외곽설정으로 지붕 만들기)를 클릭합니다.
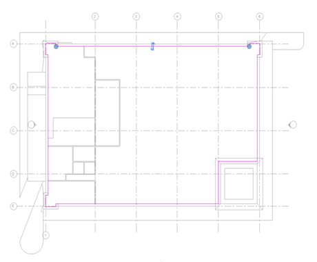
(벽 선택)을 클릭합니다.

지붕 드롭다운
(외곽설정으로 지붕 만들기)를 클릭합니다.

(기본 3D 뷰)를 클릭합니다.
내부 벽이 지붕을 뚫고 확장됩니다.

뷰에 나타남을 선택하여 내부 벽을 모두 선택합니다.
벽 수정 패널
(상단/베이스 부착)을 클릭합니다.
벽이 더 이상 지붕을 뚫고 확장되지 않는 것을 알 수 있습니다.
