Zakres widoku jest zestawem płaszczyzn poziomych sterujących widocznością obiektu i wyświetlaniem w rzucie.
Nagranie wideo: Modyfikowanie zakresu widoku
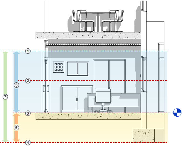
Każdy widok planu ma właściwość nazywaną zakresem widoku, zwaną również zakresem widoczności. Płaszczyzny poziome, które definiują widok zakresu: górna i dolna oraz płaszczyzna cięcia. Górna i dolna płaszczyzna przycięcia reprezentują części zakresu widoku znajdujące się odpowiednio na samej górze i na samym dole zakresu widoku. Płaszczyzna cięcia jest płaszczyzną określającą, na jakiej wysokości dane elementy w widoku będą pokazywane jako cięte. Te trzy płaszczyzny określają zakres główny zakresu widoku.
Głębokość widoku jest dodatkową płaszczyzną poza zakresem głównym. Można zmienić głębokość widoku, aby pokazać elementy poniżej dolnej płaszczyzny przycięcia. Domyślnie głębokość widoku pokrywa się z dolną płaszczyzną przycięcia.
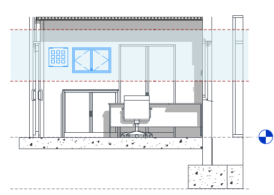
Poniższa elewacja przedstawia zakres widoku
rzutu: górną płaszczyznę
, płaszczyznę cięcia
, dolną płaszczyznę
, odsunięcie (od dołu)
, zakres główny
i głębokość widoku
.
Rzut po prawej stronie przedstawia wynik zastosowania tego zakresu widoku.
|
|
W programie Revit używane są następujące reguły wyświetlania w rzucie elementów, które są przecinane przez płaszczyznę cięcia:
Wyjątki dotyczące wyświetlania elementów przeciętych przez płaszczyznę cięcia obejmują następujące przypadki:
Długość 6 stóp jest mierzona od góry ramki ograniczającej do dołu pierwotnego zakresu widoku. Na przykład jeśli utworzono ścianę, której górny koniec znajduje się 6 stóp powyżej dolnej płaszczyzny przycięcia, ściana jest cięta przy płaszczyźnie cięcia. Gdy góra ściany ma mniej niż 6 stóp, cała ściana jest wyświetlana jako rzut, nawet tam, gdzie tnie ona płaszczyznę cięcia. Takie zachowanie występuje zawsze, gdy właściwość Wiązanie góry dla ściany jest określone jako Niezwiązany. Jeśli właściwość ściany Wiązanie góry jest ustawiona na Związany, ściana jest zawsze przecinana lub rzutowana zależnie od położenia płaszczyzny cięcia.
Wskazówka: rodziny mogą zawierać geometrię przecinającą płaszczyznę cięcia, przez co geometria może być widoczna powyżej płaszczyzny cięcia.
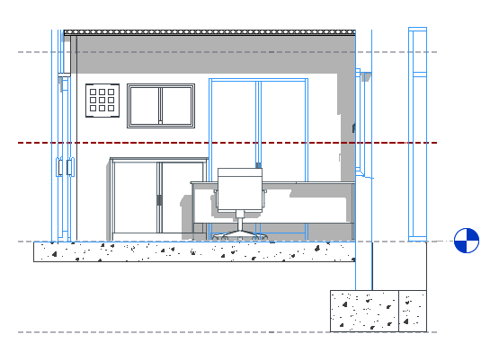
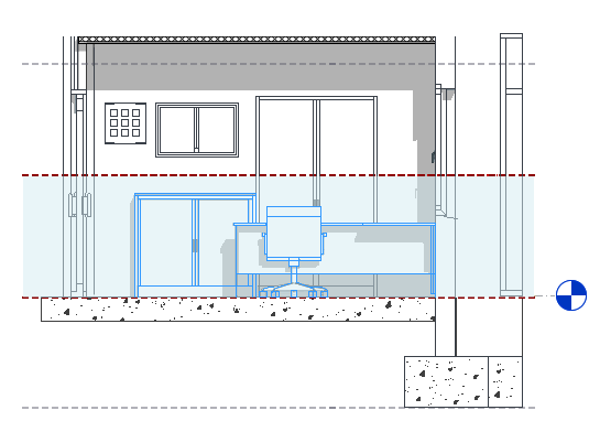
Na poniższej elewacji niebieskie podświetlenie wskazuje elementy, które przecinają płaszczyznę cięcia.
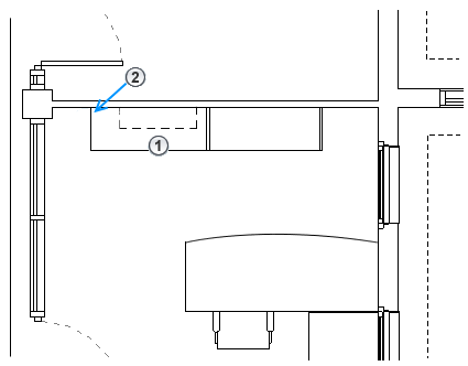
Rzut po prawej stronie przedstawia następujące elementy:
Elementy, które są rysowane przy użyciu szerokości linii cięcia (ściany, drzwi i okna).
Elementy, które są rysowane za pomocą szerokości linii rzutowania, ponieważ są one niecięte (zabudowa).
|
|
W programie Revit te elementy są rysowane w rzucie za pomocą szerokości linii rzutowania odnoszącej się do kategorii elementu.
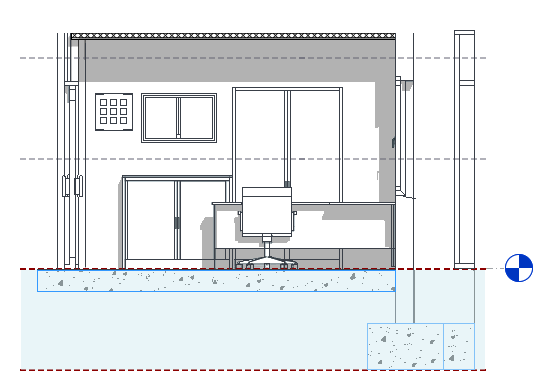
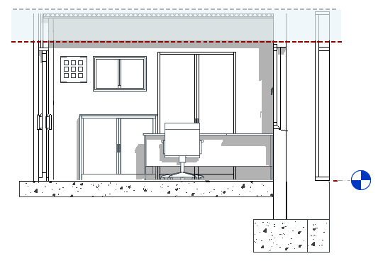
Na poniższej elewacji niebieskie podświetlenie oznacza elementy znajdujące się poniżej płaszczyzny cięcia i powyżej dolnej płaszczyzny przycięcia.
Rzut po prawej stronie przedstawia następujące elementy:
Elementy, które są rysowane za pomocą szerokości linii rzutowania, ponieważ nie są przecinane przez płaszczyznę cięcia. (Szafka, biurko i krzesło)
|
|
Elementy w obrębie głębokości widoku są rysowane za pomocą stylu linii <Poza> niezależnie od kategorii elementu.
Wyjątki: W przypadku stropów, stropów konstrukcyjnych, schodów i ramp znajdujących się poza zakresem widoku używany jest dopasowany zakres sięgający 4 stóp (ok. 1,22 m) poniżej dolnej wartości zakresu pierwotnego. W dopasowanym zakresie elementy są rysowane za pomocą szerokości linii rzutowania dotyczącej danej kategorii. Jeśli elementy występują poza dopasowanym zakresem, ale w obrębie głębokości widoku, są rysowane za pomocą stylu linii <Poza>.
Na przykład na poniższej elewacji niebieskie podświetlenie wskazuje elementy znajdujące się poniżej dolnej płaszczyzny przycięcia i w obrębie głębokości widoku.
Rzut po prawej stronie przedstawia następujące elementy:
Element (fundament) w obrębie głębokości widoku, rysowany za pomocą stylu linii <Poza>.
Element, który jest rysowany przy użyciu szerokości linii rzutowania dotyczącej danej kategorii, ponieważ spełnia warunki wyjątków.
|
|
Elementy te nie są wyświetlane w rzucie, chyba że należą do kategorii okno, zabudowa lub model ogólny. Elementy w tych 3 kategoriach są rysowane przy użyciu szerokości linii rzutowania jako widziane z góry.
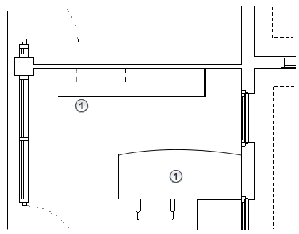
Na przykład na poniższej elewacji niebieskie podświetlenie oznacza elementy, które występują między górnym zakresem widoku a płaszczyzną cięcia.
Rzut po prawej stronie przedstawia następujące elementy:
Naścienna zabudowa, który jest rysowana z użyciem rzutowanej szerokości linii. W tym wypadku styl linii kreskowanej do linii rzutowania jest zdefiniowany w rodzinie zabudowy.
Kinkiet ścienny (kategoria oświetlenia), który nie jest rysowany w rzucie, ponieważ nie należy do kategorii okno, zabudowa lub model ogólny.
|
|
Podobnie jak rzuty, odwrócone rzuty stropu również mają ustawienie zakresu widoku, ale z pewnymi różnicami.
