Tipo de Legenda — Montagens (Lista de Materiais)

Uma legenda para uma montagem é uma Lista de Materiais (LDM). É uma tabela de componentes/submontagens utilizados numa montagem.

É possível criar uma LDM, como descrito abaixo, ou, se você tiver instalado o Microsoft Excel, uma Lista de Materiais Embutida.

Para criar uma legenda para uma montagem:

  1. Assegure-se de que a opção Usar uma planilha para criar tabela, na página LegendaDraftingDraftingOpções esteja desmarcada.
  2. Clique na guia Anotação > painel Tabela > Furo.
  3. No diálogo Opções de Legenda, selecione a opçãoMontagem.

    Se houver duas ou mais montagens no modelo, selecione a montagem que será utilizada para criar a legenda, utilizando o diálogo Montagens Disponíveis:

  4. Clique OK.

Se a montagem estiver em uma vista de desenho ativa, os componentes recebem rótulos na legenda e balões utilizando esses rótulos marcam os componentes na vista do desenho. Você seleciona a forma dos balões na página Balão do diálogo Opções.

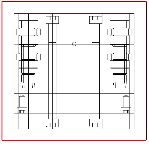
Uma montagem numa vista ativa é mostrada a seguir:

A seguinte legenda é criada para a montagem.

A legenda agrupa todos os componentes criados a partir da mesma definição de componente.

A legenda pode conter as seguintes colunas: