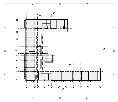
Editar uma região de recorte

Use as regiões de recorte para ocultar partes do modelo em uma vista.

As regiões de recorte podem ser retangulares ou não retangulares.

  1. Em uma vista de planta, de elevação ou de corte, selecione a região de recorte e clique na guia Editar modificar |<tipo de vista> painel Modo Editar recorte.
  2. Use as ferramentas nos painéis Modificar e Desenhar para editar a região de recorte, como necessário. Modifique as linhas existentes ou exclua as linhas e desenhe uma forma completamente diferente.
    Nota: Quando uma região de recorte não for retangular, ela poderá criar tamanhos de arquivos grandes ao imprimir para PDF. Consulte Solução de problemas: Imprimir vistas e folhas para obter informações adicionais.
  3. Quando tiver terminado, clique em Concluir modo de edição.
Nota: Se você desejar redefinir um recorte editado para uma forma retangular, selecione-o e clique na guia Editar modificar |<tipo de vista> painel Modo Redefinir recortar.