Revise exemplos de fluxo de trabalho diferentes do dimensionamento de peças de montagem nas vistas de desenho de fabricação pré-moldado.
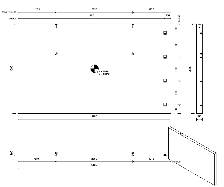
As cotas de todas as peças de montagem da mesma família serão colocadas em uma linha se as peças de montagem forem colocadas no mesmo lado do hospedeiro. A referência para essa colocação é o centro do elemento. Todas as peças de montagem com o mesmo nome de família que estão na parte superior do centro do hospedeiro serão dimensionadas na parte superior do elemento. As peças de montagem abaixo do centro serão dimensionadas abaixo do elemento. A mesma regra se aplica a linhas de cota verticais. Os pontos de cota nas extensões do hospedeiro são adicionados à linha de cota, além dos pontos de cota das peças de montagem (um ponto à esquerda e à direita ou superior e inferior).



painel Segmentação
(Dividir) para dividir a parede.
painel Conexões
(Peças de montagem) para adicionar as placas de âncora à montagem.
painel Fabricação
(Desenhos de fabricação) para criar um desenho de fabricação para a montagem.

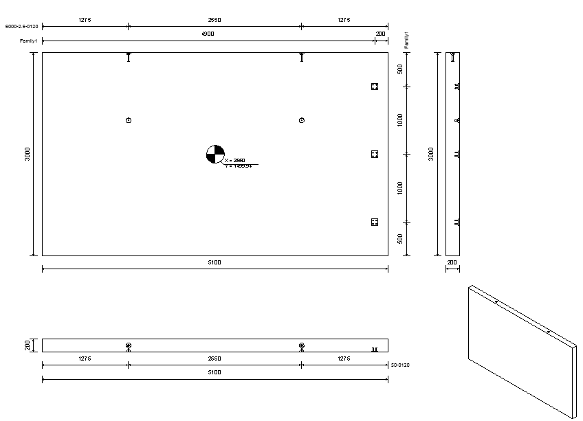
Baseado no nome da subcategoria, as linhas de cota devem ser criadas somente ao visualizar as placas de âncora de cima (conforme visto na família). Para a parede neste exemplo, isso está somente na vista frontal.


Defina uma subcategoria e o parâmetro de visibilidade como no primeiro exemplo.
painel Segmentação
(Dividir) para dividir a parede.
painel Conexões
(Peças de montagem) para adicionar as placas de âncora à montagem.
painel Fabricação
(Desenhos de fabricação) para criar um desenho de fabricação para a montagem.

painel Fabricação
(Desenhos de fabricação) para criar um desenho de fabricação para a montagem.

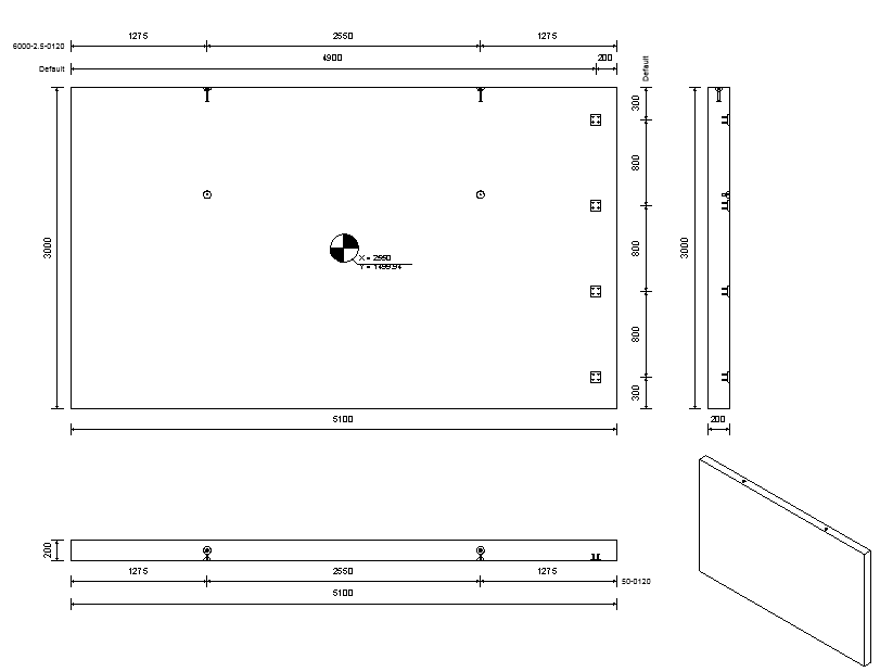
As extensões das placas de âncora são dimensionadas em todas as vistas (usando uma cota, já que é sempre a mesma família).
Nas vistas superior e frontal, somente a placa é dimensionada (sem as âncoras), como nessas vistas somente as faces redondas das âncoras são visíveis, sem oferecer nenhuma referência à cota.


painel Segmentação
(Dividir) para dividir a parede.
painel Fabricação
(Desenhos de fabricação) para criar um desenho de fabricação para a montagem.
