В этом упражнении за счет работы с различными уровнями в проект добавляются коридор, наружные и внутренние стены.
|
Категория
|
Новые пользователи
|
|
Требуемое время
|
15 мин.
|
|
Используемые учебные файлы
|
GSG_02_Create_Walls.rvt
|
|
Сначала скачайте файл данных GSG_02_Create_Walls.rvt. Скачайте этот файл ZIP (если файлы упражнений для учебных пособий еще не загружены).
Цели
- Добавление наружных стен путем их рисования на основе выбранных точек.
- Добавление внутренних стен на нижний уровень с помощью инструмента "Стена".
- Использование инструментов «Обрезать/Удлинить» для создания проема для коридора.
Просмотреть видеоролик
Изменение наружных стен
- На 3D-виде выберите стены в углах здания. Нажав и удерживая клавишу CTRL, выберите нужные элементы с помощью ограничивающей рамки.
- На палитре «Свойства» для параметра «Зависимость сверху» выберите «04 — Верхний парапет» и нажмите кнопку «Применить».
- Нажмите клавишу ESC, чтобы отменить выбор стен.
- Выберите две стены в переднем правом углу модели здания. На палитре «Свойства» для параметра «Смещение снизу» укажите значение 4250 мм.
- В списке «Выбор типа» измените тип стены на «Наружный — Обмазка кирпича на блоке на входе».
Добавление внутренних стен
- В узле «Планы этажей» Диспетчера проекта дважды щелкните элемент «01 — Этаж магазина».
- Выберите вкладку «Архитектура»
панель «Формирование»
(«Стена»).
- В списке «Выбор типа» выберите «Внутренние — Перегородка (1 час) 138 мм».
- На панели параметров выполните следующее:
- Для параметра «Высота» выберите значение «03 — Нижний парапет».
- Для параметра "Линия привязки" выберите "Осевая линия стены".
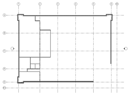
- На основе нижеприведенного рисунка разместите внутренние стены для создания помещений:
- Точное местоположение указывать необязательно.
- Во время компоновки стен можно включать или отключать параметр «Цепь». Он позволяет размещать стены встык. Если параметр «Цепь» отключен, необходимо указать обе конечные точки каждой стены. Поэкспериментируйте с обеими настройками.
- Изменение стены для создания коридора:
- Для завершения команды щелкните значок
(«Изменить»).
Часть 3. Создание рельефа и основания здания