Размещение пространств в зонах со сложной структурой по вертикали

Этот способ размещения пространства предусматривает наложение зависимости, согласно которой его объем заключен между базовым уровнем и вышележащим уровнем.

Этот метод можно применять при размещении пространств в зонах, проходящих через несколько уровней, в зонах с верхнем уровнем на консоли и зонах с лофт-объектом, который служит верхним пределом для части зоны. Такие зоны можно разделить посредством линий-разделителей пространств или дополнительных уровней

В Диспетчере проекта дважды щелкните на виде плана этажа, который содержит базовый уровень для зоны, расположенной на нескольких уровнях.

Далее следует создать разрез для проверки протяженности размещаемых пространств по вертикали.

Совет: Пространства не отображаются на фасадах.

Создание разрезов

    Можно воспользоваться существующим разрезом, однако следует убедиться в том, что линия разреза пересекает зону, в которой будут размещены пространства.

  1. Выберите вкладку "Вид"панель "Создание" ("Разрез").
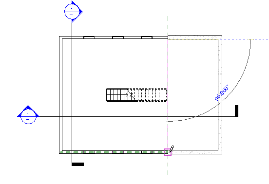
  2. На виде плана этажа нарисуйте два перпендикулярных разреза через план этажа, как показано на рисунке.

    Убедитесь в том, что линия разреза пересекает зону, в которой размещается пространство. В противном случае пространство не будет отображаться на разрезе.

  3. В Диспетчере проекта откройте новый разрез, дважды щелкнув на нем.

Создание уровней

    В этом разделе предполагается, что в конструкции существуют стандартные уровни и создавать их не требуется. При отсутствии таких уровней необходимо создать их.

  1. Нажмите "Изменить".

Разделение зоны посредством линий-разделителей пространств

  1. Щелкните на плане этажа для активизации этого вида.
  2. Выберите вкладку «Анализ»панель «Пространства и зоны» «Разделитель пространства» и постройте разделитель пространства между частями зоны, соответствующими различным значениям верхнего предела.
    Прим.: Линии-разделители пространств являются компонентами с функцией границ комнат.
  3. В Диспетчере проекта откройте оба новых вида разреза.
  4. Закройте все виды, кроме двух разрезов и плана этажа, на котором требуется разместить пространство, и введите с клавиатуры w t для расположения этих трех видов без перекрывания.

    Можно также выбрать вкладку «Вид»панель «Окна» («Мозаичное расположение окон»).

Включение видимости пространств

  1. Щелкните на разрезе для его активизации.
  2. Наберите v g на клавиатуре.
  3. На вкладке "Категории модели" диалогового окна "Видимость/Графика" путем прокрутки вниз отобразите раздел "Пространства".
  4. Разверните раздел "Пространства", выберите "Внутреннее" и "Опорные" (если требуется отображать опорные перекрестия) и нажмите "OK".
  5. Для отображения пространств на другом виде разреза и на виде плана этажа выполните эту операцию еще раз.

Размещение пространства

  1. При активном плане этажа выберите вкладку «Анализ»панель «Пространства и зоны» («Пространство»).
    Прим.: Может потребоваться загрузить марки пространств в проект, если они еще не загружены.
  2. На панели параметров выполните следующие операции:
    • Для параметра "Верхний предел" задайте вышележащий уровень.

      Для пространства, расположенного под крышей, верхний предел следует задать на уровне, расположенном над крышей; в этом случае выполняется привязка пространства к крыше. При отсутствии такого уровня создайте его. Подробные сведения см. в разделе Размещение пространств до крыши.

    • В поле "Смещение" введите значение 0 футов 0 дюймов (0,00 мм).

      Эти два параметра указывают протяженность пространства по вертикали, или его высоту.

      Прим.: Если высота, определяемая верхним пределом и смещением, выходит за пределы вышележащего уровня, расположенного над крышей, граница пространства по вертикали несмотря на это привязывается к компоненту с функцией границы комнаты, например, к потолку или полу. Это обусловлено тем, что при выбранном параметре "Площади и объемы" (режим по умолчанию) выполняется привязка границы пространства по вертикали к компонентам с функцией границ комнат, таким как потолки, полы и крыши. Объем пространства рассчитывается до компонента с функцией границы помещения. Для доступа к параметру "Площади и объемы" выберите вкладку "Архитектура"раскрывающийся список "Помещения и зоны""Расчеты площадей и объемов".
    • При создании нового пространства убедитесь в том, что в поле "Пространство" выбрано значение "Новое", а для размещения существующего неразмещенного пространства выберите его в списке.
    • Выберите требуемые значения для следующих параметров:

    • "Марка при размещении": размещение марки вместе с пространством.

      Режим "Марка при размещении" выбран по умолчанию. Если выбран режим "Марка при размещении", в списке "Выбор типа" можно выбрать тип марки.

    • Поле "Местоположение марки": указывает местоположение марки пространства - "Горизонтально", "Вертикально" или "Модель".

      Это поле доступно только в том случае, если выбран режим "Марка при размещении".

    • "Выноска": создание линии выноски для марки пространства.

      Этот параметр доступен только в том случае, если выбран режим "Марка при размещении".

    • "Показ ограничивающих элементов". Выделение в модели здания элементов с функцией границ помещений для их быстрого распознавания.
  3. На виде плана этажа наведите курсор на зону в модели здания и щелчком мыши разместите пространство.
    Прим.: Пространства можно размещать только на видах плана этажа.
  4. Нажмите "Изменить".
  5. Выберите пространство.
  6. На палитре свойств в разделе "Расчет энергопотребления" выполните одно из следующих действий.
    • Установите флажок "Сдается в аренду", если пространство будет обитаемым.
    • Снимите флажок "Сдается в аренду", если пространство будет необитаемым.
  7. Нажмите "ОК".
    Прим.: При размещении пространства в зоне, содержащей комнату, автоматически устанавливается флажок "Сдается в аренду". Пространство определяется как обитаемое. Если зона не содержит помещение, флажок "Сдается в аренду" автоматически снимается. Пространство определяется как необитаемое. В любой момент можно изменить определение пространства, установив или сняв этот флажок. Параметр «Сдается в аренду» влияет на расчет систем.

Проверка пространств

  1. На разрезе и виде плана этажа проверьте наличие зависимостей, согласно которым раскрашенные зоны, представляющие объем пространств, заключены между базовым уровнем и вышележащим уровнем, и убедитесь в отсутствии нераскрашенных зон (которые могут быть вызваны, например, наличием полостей или шахт). При выполнении этих условий повышается точность расчета объема.
  2. Если на пространство не наложена указанная зависимость, на разрезе убедитесь в том, что в качестве верхнего предела пространства задан вышележащий уровень, и при необходимости измените заданную протяженность пространства по вертикали.

    Необходимо также разрешить все нераскрашенные зоны.

    Другие сложные пространства можно разделить посредством линий-разделителей пространств или посредством уровней, как показано на рисунке.

    Пример слева. Уровень разделяет зону по горизонтали. Для нижней зоны базовым уровнем служит уровень 1, а верхним пределом - уровень 2. Для второго пространства в качестве базового уровня задан уровень 2, а в качестве верхнего предела - уровень верха крыши.

    Пример справа. Линия, разделяющая пространства, разделяет зону по вертикали. Для нижней зоны базовым уровнем служит уровень 1, а верхним пределом - уровень верха крыши. Для пространства 2 базовым уровнем является уровень 2, а верхним пределом - уровень верха крыши.