Примеры монтажных деталей в рабочих чертежах для сборных элементов

Просмотрите примеры различных рабочих процессов по нанесению размеров монтажных деталей в видах рабочих чертежей для сборных элементов.

Нанесение размеров монтажных деталей на одной размерной линии

Размеры всех монтажных деталей одного семейства будут нанесены на одной линии, если монтажные детали размещены на одной стороне основного объекта. Опорным элементом для размещения является центр объекта. Размеры монтажных деталей с одинаковым именем семейства, которые располагаются над центром основного объекта, будут нанесены в верхней части объекта. Размеры монтажных деталей, которые располагаются под центром, будут нанесены в нижней части объекта. Аналогичное правило применяется для вертикальных размерных линий. Размерные точки на границах основного объекта добавляются к размерной линии вдобавок к размерным точкам монтажных деталей (одна точка слева и справа либо сверху и снизу).

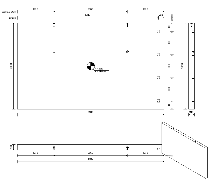
Пример. Нанесение размеров по центру анкерной пластины в обоих направлениях на виде сверху

  1. Откройте семейство анкерной пластины из папки Libraries\US Metric\Structural Connections\Mounting Parts\Fastening Plates\M_Plate with Anchors.rfa.


  2. В Диспетчере проекта перейдите к узлу «Планы этажей, опорный уровень» и создайте одну горизонтальную линию модели и одну вертикальную, чтобы они пересекались в середине анкерной пластины.


  3. Создайте подкатегорию «Размер_сверху» и укажите ее в качестве подкатегории для двух линий.
  4. Настройте параметр видимости экземпляра размерной линии и сделайте линии невидимыми.
  5. Загрузите семейство анкерной пластины в проект и разместите его на стене.


  6. Выберите вкладку «Сборные элементы» панель «Сегментация» (Разделить) для разделения стены.
  7. Выберите вкладку «Сборные элементы» панель «Соединения» (Монтажные детали), чтобы добавить анкерные пластины в сборку.
  8. Выберите вкладку «Сборные элементы» панель «Производитель» (Рабочие чертежи), чтобы создать рабочий чертеж для сборки.
Размеры центров анкерных пластин наносятся на виде сверху (на одной линии, так как они относятся к одному семейству).


В зависимости от названия подкатегории размерные линии следует создавать только при отображении анкерных пластин на виде сверху (как видно в семействе). Для стены в данном примере — только при отображении вида спереди.

Если плиты добавлены на верхнюю грань стены, размеры семейств будут нанесены только на виде чертежа сверху.




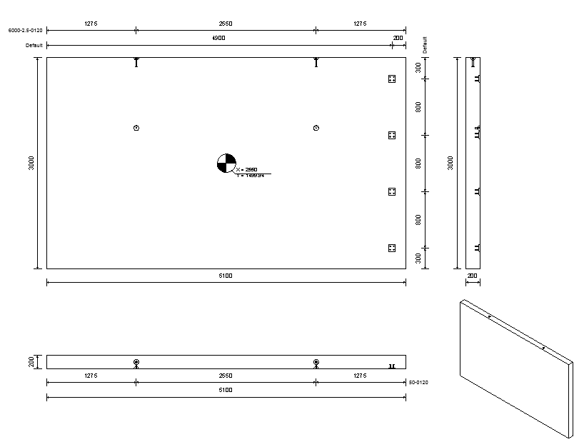
Пример. Нанесение размеров семейства анкерной пластины с помощью одной размерной линии

  1. Создайте одну размерную линию вместо двух, пересекающих центр. Разместите линию в центре семейства перпендикулярно плоскости анкерной пластины.
  2. Задайте подкатегорию и параметр видимости, как в первом примере.

  3. Загрузите семейство в проект и разместите его на стене.
  4. Выберите вкладку «Сборные элементы» панель «Сегментация» (Разделить) для разделения стены.
  5. Выберите вкладку «Сборные элементы» панель «Соединения» (Монтажные детали), чтобы добавить анкерные пластины в сборку.
  6. Выберите вкладку «Сборные элементы» панель «Производитель» (Рабочие чертежи), чтобы создать рабочий чертеж для сборки.


Размеры семейства будут нанесены так же, как в первом примере, но с двумя существенными отличиями.
  • В первом примере можно было создать только одну линию, как показано выше. Это позволяло наносить размеры только вертикально либо только горизонтально. Во втором примере размеры по обоим направлениям нанесены с помощью одной и той же опорной линии.
  • Поскольку в первом примере анкерная пластина добавлена повернутой, ее размеры нельзя нанести (опорные линии больше не параллельны оси стены). Во втором примере размеры центра пластины всегда нанесены.

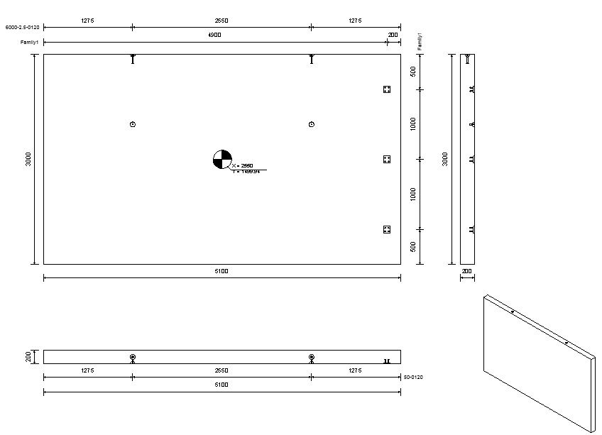
Пример. Нанесение размеров анкерной пластины с помощью контура семейства

  1. Удалите все размерные линии из семейства.
  2. Загрузите семейство в проект.
  3. Выберите вкладку «Сборные элементы» панель «Производитель» (Рабочие чертежи), чтобы создать рабочий чертеж для сборки.


Размеры границ анкерной пластины нанесены во всех видах (с помощью одного размера, так как это то же семейство).

В видах спереди и сверху наносятся размеры только пластины (без анкеров), так как в этих видах видимы только круглые грани анкеров, из-за чего нет опорных элементов для нанесения размеров.

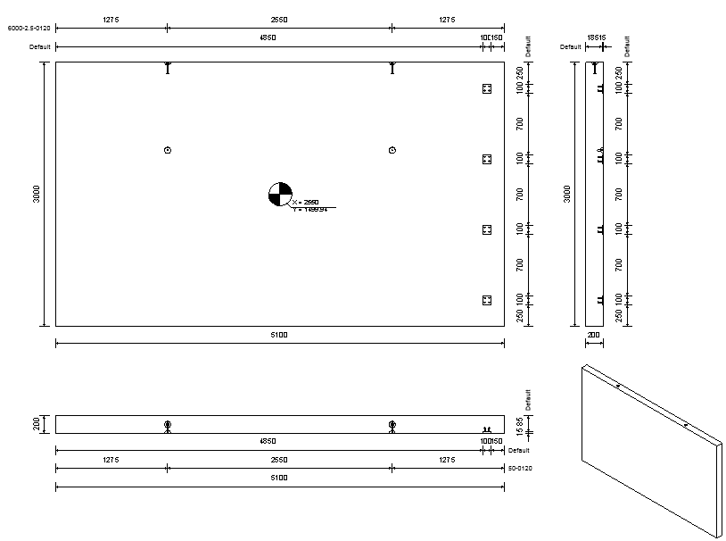
Пример. Нанесение размеров с помощью вложенных семейств

  1. Создайте семейство, используя шаблон «Метрическая система, типовая модель на основе грани».
  2. Загрузите анкерные пластины с размерами в семейство и разместите три экземпляра на верхней грани тела семейства.


  3. Прим.: Параметр видимости экземпляра размерной линии должен быть передан в новое семейство.
  4. Разместите новое семейство на стене.


  5. Выберите вкладку «Сборные элементы» панель «Сегментация» (Разделить) для разделения стены.
  6. Выберите вкладку «Сборные элементы» панель «Производитель» (Рабочие чертежи), чтобы создать рабочий чертеж для сборки.
Размеры анкерных пластин наносятся только на виде спереди.