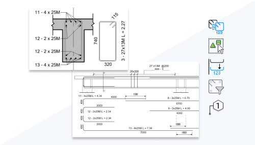
钢筋图形上的钢筋弯曲详图

将弯曲详图添加到钢筋图形中,以创建准确的钢筋弯曲和安装说明。

可以使用功能区中的专用工具,在平面视图、剖面视图和立面视图中的视图裁剪区域内外放置弯曲详图。修改钢筋弯曲详图的参数,以便最好地满足钢筋图形需求。



此功能由客户在 Ideas 论坛上提出,并在产品路线图中进行了介绍。

请参见钢筋图形上的钢筋弯曲详图